Vermeerstraat 44

Vermeerstraat 44
LEEUWARDEN

Vraagprijs:
€ 235.000 k.k.

Vermeerstraat 44, LEEUWARDEN

woningtype
Woonhuis

woonoppervlakte
77 m²

Aantal kamers
4 kamers, 3 slaapkamers

Locatie
LEEUWARDEN

Foto's

Omschrijving

Starters en jonge gezinnen opgelet! Op zoek naar een instapklare jaren ’30 woning met verrassend veel leefruimte en karakteristieke elementen in de wijk Huizum? Dan is deze tussenwoning aan de Vermeerstraat precies wat je zoekt!

Deze tussenwoning ligt in de populaire woonwijk Huizum, op loopafstand van het treinstation én het stadscentrum van Leeuwarden. De woonkamer kenmerkt zich door het hoge plafond met balkenstructuur en de grote raampartijen, wat zorgt voor veel lichtinval en een prettig ruimtelijk gevoel. De woning is de afgelopen jaren op meerdere elementen gemoderniseerd. Zo is in 2024 bodemisolatie in de kruipruimte aangebracht, zijn het dak van de keuken en badkamer vernieuwd en geïsoleerd en is de elektrische bedrading in de woning vernieuwd. Verder is de woning netjes afgewerkt en biedt in combinatie met het energielabel C een comfortabel en energiezuinig woonklimaat.

Zie jij jezelf hier al wonen? Maak gerust een afspraak en ervaar deze instapklare woning zelf!

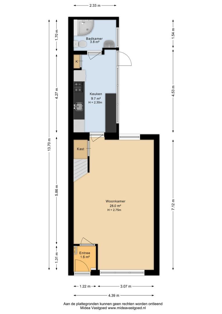
Indeling van de woning:

begane grond:
- entree, hal met meterkast
- ruime en lichte woonkamer, met trapopgang naar eerste verdieping (circa 28 m²)
- trapkast
- keuken met vernieuwd keukenblad en inbouwapparatuur: 4-pits gaskookplaat, oven en afzuigkap
- badkamer v.v. toilet, wastafel, douchecabine, mechanische afzuiging en kastenwand
- toegang tot tuin via keuken

eerste verdieping:
- overloop me toegang tot vliering
- eerste slaapkamer aan de achterzijde van de woning (circa 10 m²)
- tweede slaapkamer aan de voorzijde van de woning (circa 6 m²)
- derde slaapkamer aan de voorzijde van de woning (circa 6 m²)

vliering:
- momenteel in gebruik als bergruimte over de gehele breedte van de woning

algemeen:
- bouwjaar: 1930
- gebruiksoppervlakte wonen 77 m² inhoud 281 m³
- perceeloppervlakte 138 m² eigen grond
- centraal verwarmd middels cv ketel, Intergas 2020 (huur á €33,32 p/m)
- energielabel C (geldig t/m 16-3-2036)
- dak van keuken/badkamer vernieuwd en bodem- en dakisolatie aangebracht (2024)
- keuken heeft aansluiting voor eventuele toekomstige inductiekookplaat
- vrijstaande berging met elektra en achterom (circa 9 m²)
- aanvaarding in overleg


De woning is gemeten op basis van de Branche Brede Meetinstructie (BBMI). Deze meetinstructie is bedoeld om een meer eenduidige manier van meten toe te passen voor het geven van een indicatie van de gebruiksoppervlakte. De Meetinstructie sluit verschillen in meetuitkomsten niet volledig uit, door bijvoorbeeld interpretatieverschillen, afrondingen of beperkingen bij het uitvoeren van de meting.

De Vos Makelaardij B.V. staat niet in voor de juistheid van de plattegronden en aanvaardt hiervoor geen aansprakelijkheid.

Over deze woning

Locatie

Over dit object

Overdracht
Statusbeschikbaar
Prijs€ 235.000 k.k.
Bouw
Bouwjaar1930
Bouwvormbestaande bouw
Type ObjectWoonhuis
HoofdfunctieWoonruimte
Indeling
Woonoppervlakte77 m²
Perceeloppervlakte108 m²
Woning Inhoud281 m³
Kamers4 (3 slaapkamers)
Energie
EnergielabelC

Plan een bezichtiging

Vraag direct een bezichtiging aan voor deze woning. We zullen zo snel mogelijk contact met u opnemen om een afspraak te maken.

*
*
*

Lees onze voorwaarden: Cookies, Disclaimer en Privacy