Schapestraat 16

Schapestraat 16
LEEUWARDEN

Vraagprijs:
€ 315.000 k.k.

Schapestraat 16, LEEUWARDEN

woningtype
Woonhuis

woonoppervlakte
122 m²

Aantal kamers
6 kamers, 5 slaapkamers

Locatie
LEEUWARDEN

Foto's

Omschrijving

Ontdek deze sfeervolle en ruime jaren ’30-woning aan de Schapestraat in Leeuwarden, waar karakter en modern comfort samenkomen. De fraaie hoekwoning combineert authentieke details met modern wooncomfort, waaronder vloerverwarming, een eikenhouten (top)vloer en maar liefst vijf slaapkamers! Deze eengezinswoning is niet alleen ruim, dankzij de 10 zonnepanelen met micro-omvormers (geplaatst in 2020) in combinatie met dubbel glas, muur- en dakisolatie, is de woning bovendien energiezuiniger dan gemiddeld voor dit bouwjaar.

De sfeervolle woonkamer beschikt over hoge plafonds, een eikenhouten vloer met vloerverwarming en grote raampartijen die voor veel natuurlijk lichtinval zorgen. Dankzij de erker en de openslaande deuren naar de zonnige en beschutte tuin, voelt het ruim en aangenaam aan. Er is een open keuken met aansluitend een praktische bijkeuken, waar de CV-ketel, wasmachine-aansluiting en het toilet gevestigd zijn. De eerste verdieping biedt 3 slaapkamers en een badkamer, de zolderverdieping beschikt over een dakkapel over de hele breedte van de woning en 2 slaapkamers. De woning heeft door de jaren heen altijd het nodige onderhoud gehad en recent is de bitumen dakbedekking vervangen.

Kortom, een fijne, instapklare gezinswoning met veel ruimte, karakter en ook nog eens op een aantrekkelijke locatie in Leeuwarden! Van harte welkom om deze sfeervolle woning zelf te komen bekijken!

Ligging
De woning is gelegen in Oud-Oost Leeuwarden in een rustige, gemoedelijke straat dicht bij het stadscentrum. Supermarkten Jumbo en Lidl bevinden zich op ca. 500 m afstand op het oude Cambuurplein, waar het voormalige stadion van voetbalclub Cambuur staat. Tevens zijn hier ook een apotheek, Primera, slager en Sportcity gevestigd. Andere sportfaciliteiten zoals De Padelfabriek, sportcomplex Kalverdijkje met binnenzwembad, zijn binnen ca. 1 km bereikbaar. Meerdere basisscholen en bushaltes liggen eveneens op loopafstand en met ca. 10 minuten fietsen sta je in het bruisende hart van Leeuwarden.

Indeling
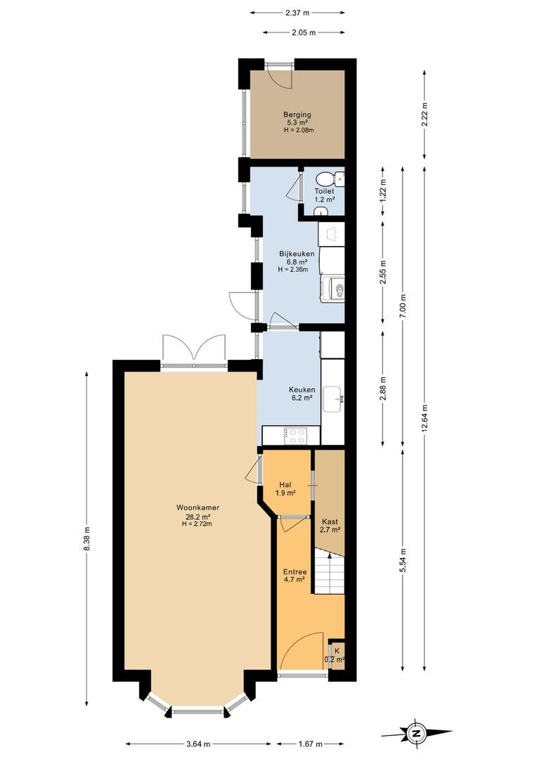
Begane grond
– Entree met meterkast
– Hal met trapkast en trapopgang
– Lichte woonkamer met vloerverwarming, massieve eikenhouten vloer, erker en openslaande deuren naar de tuin (ca. 28m²)
– Keuken met inbouwapparatuur: inductiekookplaat, afzuigkap, combi-oven (2023), vaatwasser en koelkast
– Bijkeuken met wasmachineaansluiting
– Toilet met fonteintje

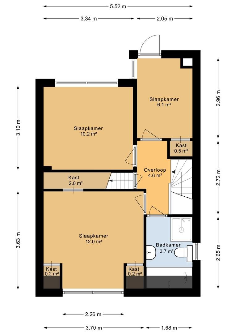
Eerste verdieping
– Overloop (ca. 5m²)
– Badkamer met douchecabine, ligbad, tweede toilet en wastafel
– Slaapkamer 1 met vaste kasten (ca. 12m²)
– Slaapkamer 2 (ca. 10m²)
– Slaapkamer 3 met vaste kast (ca. 6m²)

Tweede verdieping
– Overloop (ca. 5m²)
– Slaapkamer 4 en 5 (ca. 7 en 13 m²)

Buitenruimte
– verrassend diepe achtertuin met drainage, aangebouwde berging en een achterom
– vrijstaande bakstenen schuur

Algemeen
– Bouwjaar: 1925
– Woonoppervlakte: 122 m²
– Perceeloppervlakte: 157 m²
– Energielabel C (geldig tot 16-10-2035)
– Verwarming: Nefit Ecomline HR en voorzien van close-in boiler (eigendom)
– Elektra: 3 aardlekschakelaars, 9 groepen en 1 krachtgroep
– 10 zonnepanelen met micro-omvormers (2020)
– Bitumen dakbedekking is vervangen (2025)
– Aanvaarding in overleg

De woning is gemeten op basis van de Branche Brede Meetinstructie (BBMI). Deze meetinstructie is bedoeld om een meer eenduidige manier van meten toe te passen voor het geven van een indicatie van de gebruiksoppervlakte.
De Meetinstructie sluit verschillen in meetuitkomsten niet volledig uit, door bijvoorbeeld interpretatieverschillen, afrondingen of beperkingen bij het uitvoeren van de meting.

De Vos Makelaardij staat niet in voor de juistheid van de plattegronden en aanvaardt hiervoor geen aansprakelijkheid.

Over deze woning

Locatie

Over dit object

Overdracht
Statusonder bod
Prijs€ 315.000 k.k.
Bouw
Bouwjaar1925
Bouwvormbestaande bouw
Type ObjectWoonhuis
HoofdfunctieWoonruimte
Indeling
Woonoppervlakte122 m²
Perceeloppervlakte157 m²
Woning Inhoud452 m³
Kamers6 (5 slaapkamers)
Energie
EnergielabelC

Plan een bezichtiging

Vraag direct een bezichtiging aan voor deze woning. We zullen zo snel mogelijk contact met u opnemen om een afspraak te maken.

*
*
*

Lees onze voorwaarden: Cookies, Disclaimer en Privacy