Robinsonstraat 161

Robinsonstraat 161
LEEUWARDEN

Vraagprijs:
€ 199.000 k.k.

Robinsonstraat 161, LEEUWARDEN

woningtype
Woonhuis

woonoppervlakte
130 m²

Aantal kamers
5 kamers, 4 slaapkamers

Locatie
LEEUWARDEN

Foto's

Omschrijving

Ben jij op zoek naar een royale gezinswoning (130 m2!) met vier slaapkamers en hou je van de handen uit de mouwen steken? Dan is deze hoekwoning aan de Robinsonstraat zeker een bezichtiging waard!

De jaren '70 woning biedt een uitstekende basis en volop mogelijkheden om volledig naar eigen smaak te moderniseren. Voor klussers met visie is dit dé kans om hier een eigentijdse en comfortabele woning van te maken. De woning beschikt over een lichte woonkamer met grote raampartij aan de tuinzijde, een halfopen keuken en vier slaapkamers op de verdieping. De circa 21 meter diepe en zonnige achtertuin met berging en achterom maakt het geheel compleet. Met de juiste aanpassingen kan hier een heerlijk thuis ontstaan op een fijne woonplek.

Kortom: een woning met potentie voor wie op zoek is naar een project met eindeloze mogelijkheden.

Indeling woning:

Begane grond
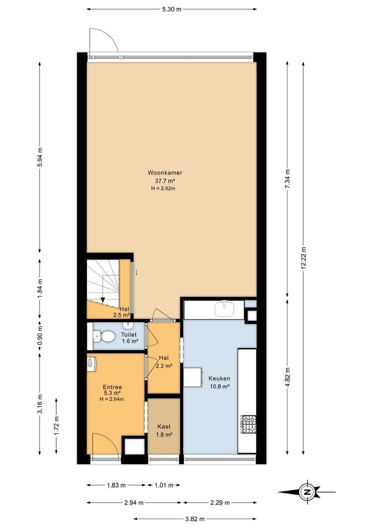
- entree met inloopkast
- toilet
- halfopen keuken met gaskookplaat, afzuigkap en oven
- ruime woonkamer (circa 40 m²) met trapopgang

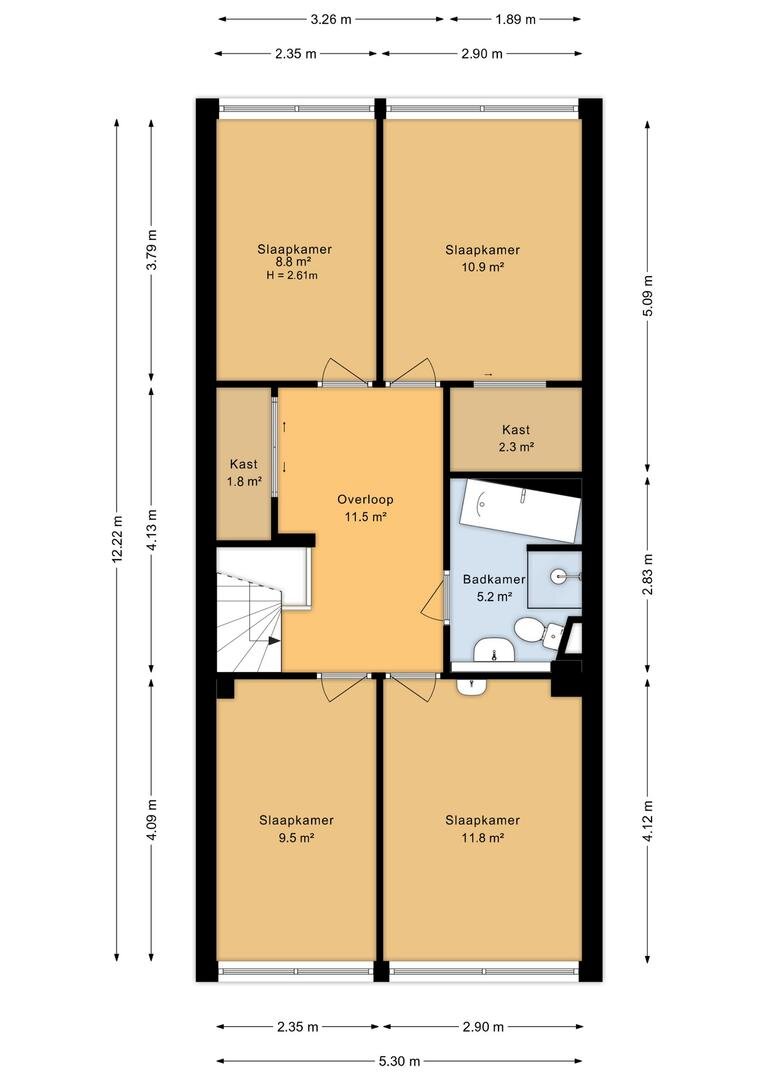
1e verdieping
- Royale overloop met vaste kast
- 1e slaapkamer (circa 9 m²) aan de achterzijde
- 2e slaapkamer (circa 11 m²) aan de achterzijde met inloopkast
- 3e slaapkamer (circa 10 m²) aan de voorzijde
- 4e slaapkamer (circa 12 m²) aan de voorzijde
- badkamer met douchecabine, ligbad, toilet en wastafel

Buiten
- diepe en zonnige achtertuin van circa 21m met veel privacy
- vrijstaande houten berging met elektra
- achterom aanwezig

Omgeving:
De woning is gelegen in een rustige woonwijk in Leeuwarden. In de directe omgeving bevinden zich diverse voorzieningen zoals supermarkten, scholen, sportvoorzieningen en openbaar vervoer. Ook het stadscentrum van Leeuwarden is op korte afstand bereikbaar, zowel per fiets als met de auto. Daarnaast zijn de uitvalswegen richting o.a. Heerenveen, Drachten en Harlingen eenvoudig te bereiken.

Algemeen:
- gebruiksoppervlakte wonen 130 m² en inhoud 455 m³
- perceeloppervlakte 192 m²
- energielabel D, geldig tot 19-02-2036
- gedeeltelijk dubbel glas
- verwarming en warm water middels Remeha Avanta HR-combiketel 2021 (huur)
- dakbedekking compleet vernieuwd in 2021
- aanvaarding in overleg

Nieuwsgierig geworden? Maak gerust een afspraak en kom deze woning bezichtigen!


De woning is gemeten op basis van de Branche Brede Meetinstructie (BBMI). Deze meetinstructie is bedoeld om een meer eenduidige manier van meten toe te passen voor het geven van een indicatie van de gebruiksoppervlakte.
De Meetinstructie sluit verschillen in meetuitkomsten niet volledig uit, door bijvoorbeeld interpretatieverschillen, afrondingen of beperkingen bij het uitvoeren van de meting.

De Vos Makelaardij staat niet in voor de juistheid van de plattegronden en aanvaardt hiervoor geen aansprakelijkheid.

Over deze woning

Locatie

Over dit object

Overdracht
Statusverkocht
Prijs€ 199.000 k.k.
Bouw
Bouwjaar1973
Bouwvormbestaande bouw
Type ObjectWoonhuis
HoofdfunctieWoonruimte
Indeling
Woonoppervlakte130 m²
Perceeloppervlakte192 m²
Woning Inhoud455 m³
Kamers5 (4 slaapkamers)
Energie
EnergielabelD

Helaas

Dit object is niet meer beschikbaar

Bekijk ons gehele aanbod of voor meer informatie kunt u contact met ons opnemen.
Bel ons op +31582037072 voor direct contact.

Contact opnemen