Opkeamer 8

Opkeamer 8
LEEUWARDEN

Vraagprijs:
€ 895.000 k.k.

Opkeamer 8, LEEUWARDEN

woningtype
Woonhuis

woonoppervlakte
303 m²

Aantal kamers
6 kamers, 5 slaapkamers

Locatie
LEEUWARDEN

Foto's

Omschrijving

Royale villa in Techum – wonen met luxe én ruimte!

In de geliefde wijk Techum staat deze prachtige vrijstaande villa uit 2010, die met veel zorg is gebouwd en tot in de puntjes is afgewerkt. Alles ademt ruimte en comfort: grote kamers, hoogwaardige materialen en een stijlvolle afwerking. Met maar liefst 5 royale slaapkamers – én de mogelijkheid om beneden een extra slaap- of werkkamer te realiseren – is dit de ideale gezinswoning.

En dat is nog niet alles: geniet van ultieme ontspanning in je eigen sauna, een luxe badkamer met whirlpool en het comfort van vloerverwarming op zowel de begane grond als de eerste verdieping. Dankzij de onderhoudsarme kunststof kozijnen met HR++ glas is de woning bovendien energiezuinig, wat resulteert in een energielabel A.

De ligging is minstens zo aantrekkelijk: op slechts 15 minuten van de bruisende binnenstad van Leeuwarden, maar toch in een rustige, kindvriendelijke wijk met prachtig vrij uitzicht. Techum biedt alles wat je nodig hebt – een supermarkt, basisschool en gezondheidscentrum – en de uitvalswegen zijn vlakbij.

Kortom: deze villa combineert ruimte, luxe en een toplocatie – the best of both worlds!

Indeling van de woning:

Begane grond:
- gehele begane grond is voorzien van vloerverwarming en visgraat PVC vloer
- voorportaal
- entree met vide, trappenhuis en vaste kast
- meterkast
- toilet met fonteintje
- tussenhal met vaste kast en boiler opstelling
- berging met kastenwand
- aangebouwde bijkeuken met extra berging en ingebouwde sauna
- royale L-vormige woonkamer (circa 62 m2) met erker v.v. houtkachel en airco
- aangebouwde serre met openslaande deuren en toegang tot de zonnige achtertuin
- luxe open keuken met kookeiland en granietenwerkblad. Voorzien van inbouwapparatuur: inductiekookplaat, vaatwasser, koffiezet apparaat, combi-oven en Amerikaanse koelkast (koel- en vrieskast).

1e verdieping:
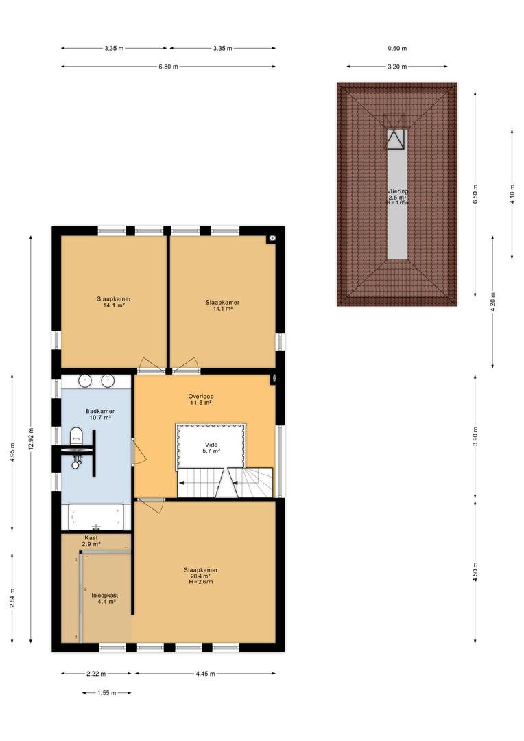
- royale overloop
- aan de achterzijde van de woning zijn 2 slaapkamers gelegen, beiden van circa 14 m2
- luxe badkamer met whirlpool, dubbele wastafel, inloopdouche en toilet
- 3e slaapkamer (circa 28 m2) aan de voorzijde van de woning, voorzien van walk-in-closet

2e verdieping:
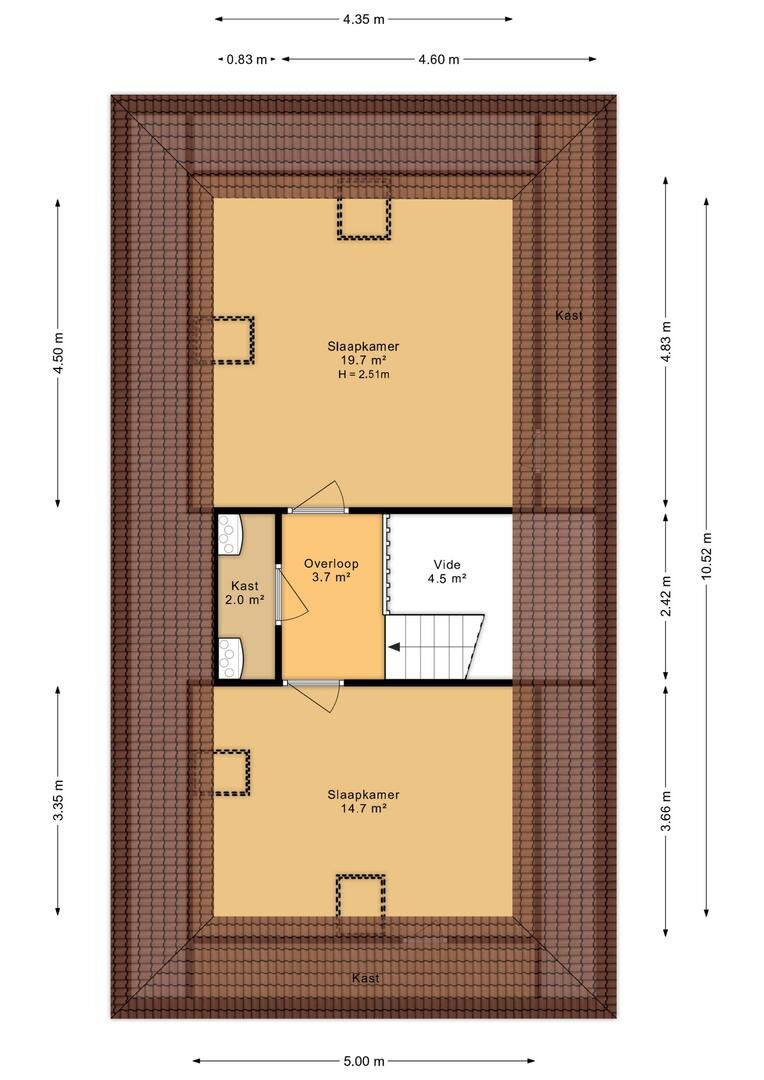
- overloop met vaste kast met dubbele WTW (warmte terugwin installatie)
- 4e slaapkamer aan de achterzijde van de woning (circa 20 m2)
- 5e slaapkamer aan de voorzijde van de woning (circa 15 m2)


Algemeen:
- gebruiksoppervlakte wonen maar liefst 303 m2 en inhoud 1.185 m3
- perceel 487 m2 eigen grond
- bouwjaar 2010
- energielabel A
- volledig geïsoleerd
- oprit met ruimte voor 4 auto's
- kunststof kozijnen met HR++ beglazing
- centraal verwarmd middels stadswarming
- koeling met meerdere airco's
- aanvaardingstermijn in overleg


De woning is gemeten op basis van de Branche Brede Meetinstructie (BBMI). Deze meetinstructie is bedoeld om een meer eenduidige manier van meten toe te passen voor het geven van een indicatie van de gebruiksoppervlakte.
De Meetinstructie sluit verschillen in meetuitkomsten niet volledig uit, door bijvoorbeeld interpretatieverschillen, afrondingen of beperkingen bij het uitvoeren van de meting.

De Vos Makelaardij staat niet in voor de juistheid van de plattegronden en aanvaardt hiervoor geen aansprakelijkheid.

Over deze woning

Locatie

Over dit object

Overdracht
Statusonder bod
Prijs€ 895.000 k.k.
Bouw
Bouwjaar2010
Bouwvormbestaande bouw
Type ObjectWoonhuis
HoofdfunctieWoonruimte
Indeling
Woonoppervlakte303 m²
Perceeloppervlakte487 m²
Woning Inhoud1185 m³
Kamers6 (5 slaapkamers)
Energie
EnergielabelA

Plan een bezichtiging

Vraag direct een bezichtiging aan voor deze woning. We zullen zo snel mogelijk contact met u opnemen om een afspraak te maken.

*
*
*

Lees onze voorwaarden: Cookies, Disclaimer en Privacy