Mussenstraat 6

Mussenstraat 6
LEEUWARDEN

Vraagprijs:
€ 265.000 k.k.

Mussenstraat 6, LEEUWARDEN

woningtype
Woonhuis

woonoppervlakte
83 m²

Aantal kamers
5 kamers, 3 slaapkamers

Locatie
LEEUWARDEN

Foto's

Omschrijving

Wonen op een rustige plek, maar toch op slechts 5 minuten fietsen van de bruisende binnenstad van Leeuwarden? Deze tussenwoning aan de Mussenstraat in de populaire Vogelwijk biedt het beste van beide werelden! Met een royale achtertuin van maar liefst 13 meter diep, een gunstig energielabel B en volop mogelijkheden om de woning naar eigen smaak te moderniseren, is dit dé plek waar je echt jouw thuis van kunt maken.

De woning beschikt over een lichte woonkamer en een halfopen keuken met inbouwapparatuur. De aangebouwde berging biedt de mogelijkheid om extra leefruimte te creëren door deze bij de woning te betrekken. Daarnaast is er op de bovenste verdieping een vliering, die met de juiste aanpassingen kan worden omgevormd tot een vierde (slaap)kamer.

Kortom: zoek jij een woning met een diepe tuin, een centrale ligging en volop mogelijkheden? Neem gerust contact op en maak een afspraak om de woning zelf te ervaren.

Indeling van de woning
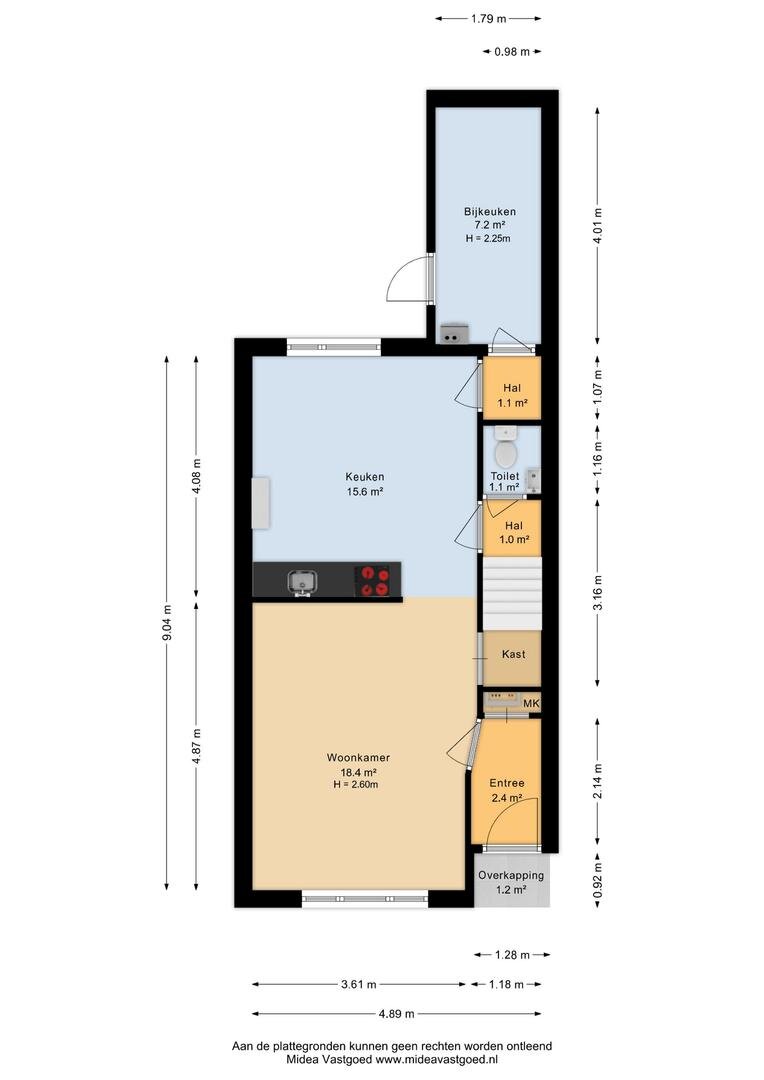
Begane grond:
- entree/hal met meterkast
- hal met trapopgang
- toilet met fonteintje
- lichte woonkamer aan de voorzijde (circa 18 m²)
- halfopen keuken met inductiekookplaat, afzuigkap en vaatwasser (circa 16 m²)
- hal naar berging
- berging met cv-opstelling en witgoedaansluiting (circa 7 m²)
- toegang tot de diepe achtertuin via de berging

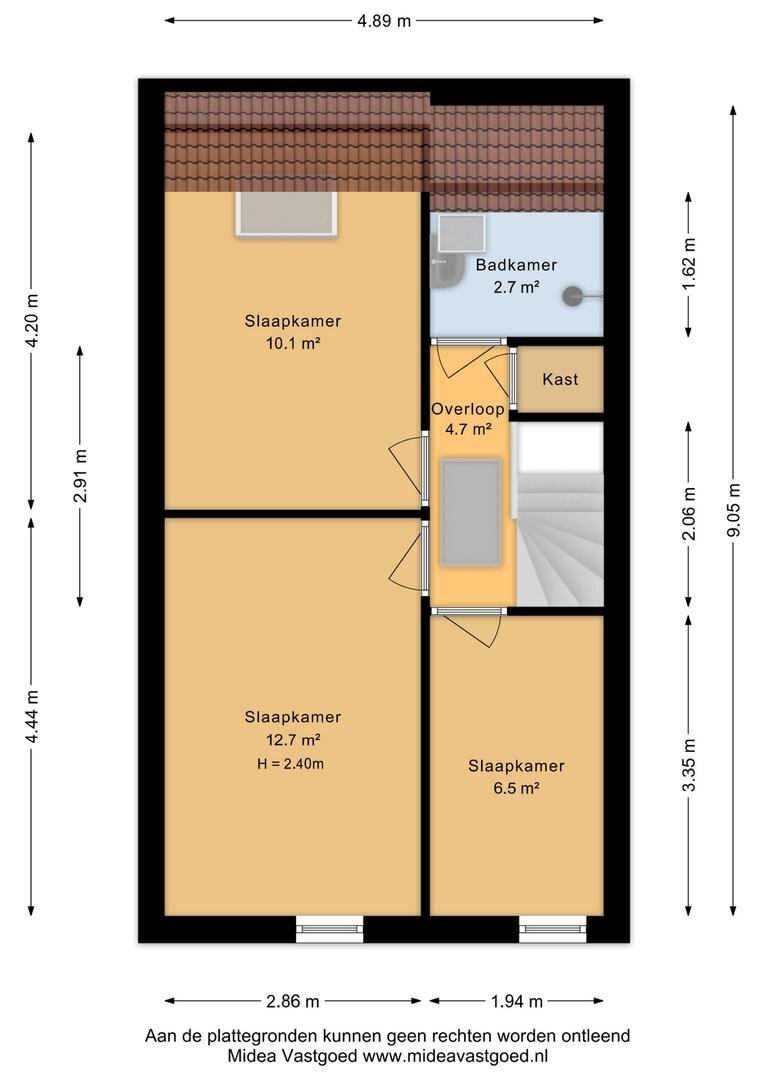
Eerste verdieping:
- 1e slaapkamer aan de voorzijde (circa 13 m²)
- 2e slaapkamer aan de voorzijde (circa 7 m²)
- 3e slaapkamer aan de achterzijde met dakraam (circa 10 m²)
- badkamer (circa 3 m²) voorzien van douche en wastafel
- overloop met vaste kast


Tweede verdieping:
- ruime vliering met vlizotrap en dakraam (circa 15 m²)
- mogelijkheid tot het realiseren van een extra slaapkamer

Algemeen:
- gebruiksoppervlakte wonen circa 83 m² inhoud 367 m3
- overige inpandige ruimte circa 23 m²
- perceeloppervlakte circa 138 m2
- diepe achtertuin
- energielabel B (geldig t/m 23-03-2036)
- mechanische ventilatie
- cv-opstelling Remeha, 2014, eigendom
- praktische indeling met 3 slaapkamers en uitbreidingsmogelijkheid naar 4

De woning is gemeten op basis van de Branche Brede Meetinstructie (BBMI). Deze meetinstructie is bedoeld om een meer eenduidige manier van meten toe te passen voor het geven van een indicatie van de gebruiksoppervlakte.
De Meetinstructie sluit verschillen in meetuitkomsten niet volledig uit, door bijvoorbeeld interpretatieverschillen, afrondingen of beperkingen bij het uitvoeren van de meting.

De Vos Makelaardij staat niet in voor de juistheid van de plattegronden en aanvaardt hiervoor geen aansprakelijkheid.

Over deze woning

Locatie

Over dit object

Overdracht
Statusbeschikbaar
Prijs€ 265.000 k.k.
Bouw
Bouwjaar1981
Bouwvormbestaande bouw
Type ObjectWoonhuis
HoofdfunctieWoonruimte
Indeling
Woonoppervlakte83 m²
Perceeloppervlakte138 m²
Woning Inhoud367 m³
Kamers5 (3 slaapkamers)
Energie
EnergielabelB

Plan een bezichtiging

Vraag direct een bezichtiging aan voor deze woning. We zullen zo snel mogelijk contact met u opnemen om een afspraak te maken.

*
*
*

Lees onze voorwaarden: Cookies, Disclaimer en Privacy