Meidoornstraat 37

Meidoornstraat 37
LEEUWARDEN

Vraagprijs:
€ 235.000 k.k.

Meidoornstraat 37, LEEUWARDEN

woningtype
Woonhuis

woonoppervlakte
87 m²

Aantal kamers
4 kamers, 3 slaapkamers

Locatie
LEEUWARDEN

Foto's

Omschrijving

Op zoek naar een leuke (starters)woning in de Bloemenbuurt van Leeuwarden? Wellicht is deze woning aan de Meidoornstraat 37 iets voor jou! Deze karakteristieke jaren '30 woning met zonnige achtertuin met achterom heeft een ruime doorzonwoonkamer, een nette dichte keuken en in totaal drie slaapkamers, waarvan één op zolder. Kunststof kozijnen op de verdieping aan de achterzijde.

De Bloemenbuurt (Oud-Oost) is een karakteristieke en geliefde wijk in Leeuwarden. Winkels, supermarkten en scholen (o.a. Hogeschool NHL Stenden) vlakbij, net als sportverenigingen en het openbaar vervoer. Het stadscentrum ligt op nog geen vijf minuten fietsen en ook de uitvalswegen zijn vlot bereikbaar. Wist je dat deze woning in aanmerking komt voor extra subsidie? Wij vertellen je er graag meer over!

Indeling begane grond:
- entree
- gang met meterkast 5 groepen en aardlekschakelaars
- lichte woonkamer (circa 26 m2) met een Amerikaans grenen vloer en trapkast met kelder
- dichte keuken met eenvoudige keukeninrichting
- bijkeuken met toilet en opstelling voor wasmachine en cv-ketel

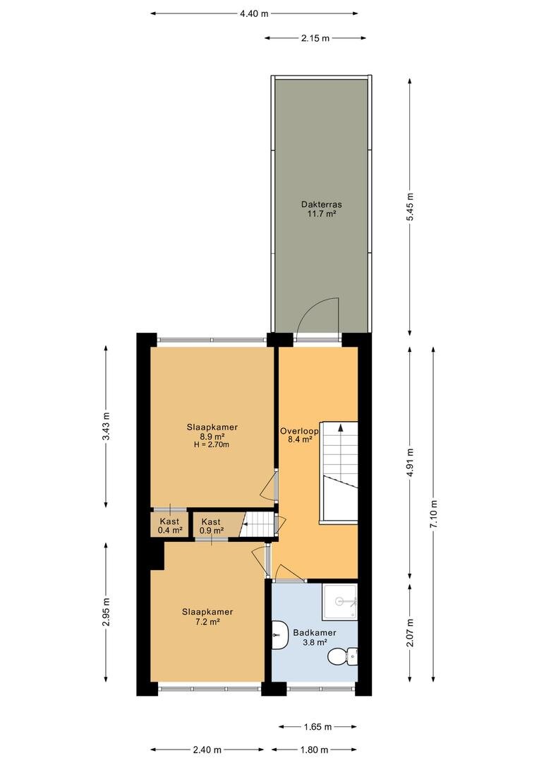
1e verdieping:
- ruime overloop met toegang naar dakterras/droogplat
- 2 slaapkamers (circa 9 en 7 m2) met vaste kasten
- badkamer met douchecabine, toilet en wastafel

Zolder:
Via vaste trap bereikbare zolder voorzien van een dakkapel een een ruime slaapkamer van circa 12 m2

Tuin:
- tuin met achterom op het noordwesten met aangebouwde houten berging

Algemeen:
- gebruiksoppervlakte wonen 87 m2, inhoud 349 m3
- perceeloppervlakte 108 m2 eigen grond
- grotendeels dubbel glas HR+ en HR++ en dakisolatie
- dakkapel recent gerenoveerd
- buitenschilderwerk gedaan in 2025
- energielabel C geldig tot 03-11-2035
- voldoende parkeergelegenheid in de directe omgeving (blauwe zone)

De woning is gemeten op basis van de Branche Brede Meetinstructie (BBMI). Deze meetinstructie is bedoeld om een meer eenduidige manier van meten toe te passen voor het geven van een indicatie van de gebruiksoppervlakte. De Meetinstructie sluit verschillen in meetuitkomsten niet volledig uit, door bijvoorbeeld interpretatieverschillen, afrondingen of beperkingen bij het uitvoeren van de meting.

De Vos Makelaardij B.V. staat niet in voor de juistheid van de plattegronden en aanvaardt hiervoor geen aansprakelijkheid.

Over deze woning

Locatie

Over dit object

Overdracht
Statusverkocht
Prijs€ 235.000 k.k.
Bouw
Bouwjaar1935
Bouwvormbestaande bouw
Type ObjectWoonhuis
HoofdfunctieWoonruimte
Indeling
Woonoppervlakte87 m²
Perceeloppervlakte108 m²
Woning Inhoud349 m³
Kamers4 (3 slaapkamers)
Energie
EnergielabelC

Helaas

Dit object is niet meer beschikbaar

Bekijk ons gehele aanbod of voor meer informatie kunt u contact met ons opnemen.
Bel ons op 058 203 70 72 voor direct contact.

Contact opnemen