Maagdepalm 4

Maagdepalm 4
LEEUWARDEN

Vraagprijs:
€ 315.000 k.k.

Maagdepalm 4, LEEUWARDEN

woningtype
Woonhuis

woonoppervlakte
133 m²

Aantal kamers
6 kamers, 4 slaapkamers

Locatie
LEEUWARDEN

Foto's

Omschrijving

Ben jij op zoek naar een ruime tussenwoning met een praktische indeling, vier ruime slaapkamers en comfortabel wonen dankzij onder andere vloerverwarming? Dan is deze woning aan de Maagdepalm 4 in Leeuwarden zeker het bekijken waard.

De woning beschikt over een lichte woonkamer en een halfopen moderne keukenopstelling, waardoor de begane grond een prettige leefruimte vormt.

Daarnaast is de woning voorzien van diverse functionele voorzieningen, zoals mechanische ventilatie, HR++ beglazing en een moderne keukenopstelling met inbouwapparatuur. Door de goede basis en de praktische indeling biedt deze woning volop mogelijkheden.

De woning is gelegen in de rustige woonwijk Aldlân-Oost in Leeuwarden. Deze wijk staat bekend om haar groene karakter en prettige woonomgeving. In de directe omgeving vind je diverse voorzieningen zoals supermarkten, scholen, sportverenigingen en openbaar vervoer. Bovendien ligt het centrum van Leeuwarden op korte afstand, waar je terecht kunt voor een uitgebreid aanbod aan winkels, horeca en culturele voorzieningen. Hierdoor combineer je hier comfortabel wonen met alle gemakken van de stad binnen handbereik.

Indeling

Begane grond:
- Entree/hal met meterkast, trapopgang en toegang tot het toilet en de woonkamer
- Toilet met fonteintje
- Woonkamer met vloerverwarming
- Keuken voorzien van onder andere: 5-pits gasfornuis, afzuigkap en close-in boiler

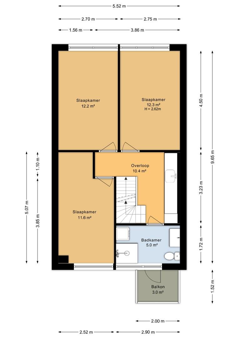
Eerste verdieping
- overloop met kastenwand
- 1e slaapkamer (circa 12m²) aan de voorzijde van de woning
- 2e slaapkamer (circa 12m²) aan de achterzijde van de woning
- 3e slaapkamer (circa 12m²) aan de achterzijde van de woning
- badkamer: v.v. inloopdouche, wastafel met meubel, toilet, vloerverwarming en wasmachineaansluiting
- vaste trap naar 2de verdieping

Tweede verdieping
- overloop (geeft tevens mogelijkheid tot het creëren van een slaapkamer)
- 4e slaapkamer (circa 12m²) aan de achterzijde van de woning
- kastruimte (circa 2,5m²) aan de voorzijde van de woning

Buiten
De woning beschikt over een diepe achtertuin, gelegen op het westen, met een achterom, van waaruit je direct op de straat staat met ruime openbare parkeermogelijkheden.

Algemeen
- bouwjaar: 1974
- gebruiksoppervlakte wonen: ca. 133m² en inhoud 478 m2
- glasvezel aanwezig
- 4 slaapkamers met ruimte voor een 5e
- vloerverwarming begane grond en badkamer
- grotendeels HR++ beglazing
- cv-installatie Atag in eigendom (2016)
- aanvaarding: in overleg

Eerste foto's van keuken en woonkamer zijn ter illustratie, hier kunnen geen rechten aan worden ontleend.

De woning is gemeten op basis van de Branche Brede Meetinstructie (BBMI). Deze meetinstructie is bedoeld om een meer eenduidige manier van meten toe te passen voor het geven van een indicatie van de gebruiksoppervlakte.
De Meetinstructie sluit verschillen in meetuitkomsten niet volledig uit, door bijvoorbeeld interpretatieverschillen, afrondingen of beperkingen bij het uitvoeren van de meting.

De Vos Makelaardij staat niet in voor de juistheid van de plattegronden en aanvaardt hiervoor geen aansprakelijkheid.

Over deze woning

Locatie

Over dit object

Overdracht
Statusbeschikbaar
Prijs€ 315.000 k.k.
Bouw
Bouwjaar1974
Bouwvormbestaande bouw
Type ObjectWoonhuis
HoofdfunctieWoonruimte
Indeling
Woonoppervlakte133 m²
Perceeloppervlakte157 m²
Woning Inhoud478 m³
Kamers6 (4 slaapkamers)
Energie
EnergielabelC

Plan een bezichtiging

Vraag direct een bezichtiging aan voor deze woning. We zullen zo snel mogelijk contact met u opnemen om een afspraak te maken.

*
*
*

Lees onze voorwaarden: Cookies, Disclaimer en Privacy