Lauermanstraat 55

Lauermanstraat 55
BURGUM

Vraagprijs:
€ 269.000 k.k.

Lauermanstraat 55, BURGUM

woningtype
Woonhuis

woonoppervlakte
124 m²

Aantal kamers
5 kamers, 4 slaapkamers

Locatie
BURGUM

Foto's

Omschrijving

Op een rustige en kindvriendelijke locatie, op loop- en fietsafstand van het centrum van Burgum, staat deze fraaie tussenwoning aan de Lauermanstraat. In de laatste jaren is de woning aan de binnenzijde gemoderniseerd door de vernieuwing van keuken, badkamer en toilet. Daarnaast beschikt deze gezinswoning over 4 slaapkamers, woonkamer met veel lichtinval en energielabel C.

De woning is gelegen op gewilde woonstand nabij wandelpaden, kinderspeelvelden en vele voorzieningen waaronder winkels, scholen, openbaar vervoer, sportfaciliteiten en overige voorzieningen. Alle voorzieningen vind je op loop-en fietsafstand!

Van harte welkom om deze ruim opgezette woning te komen bekijken!

Indeling van de woning:

Begane grond:
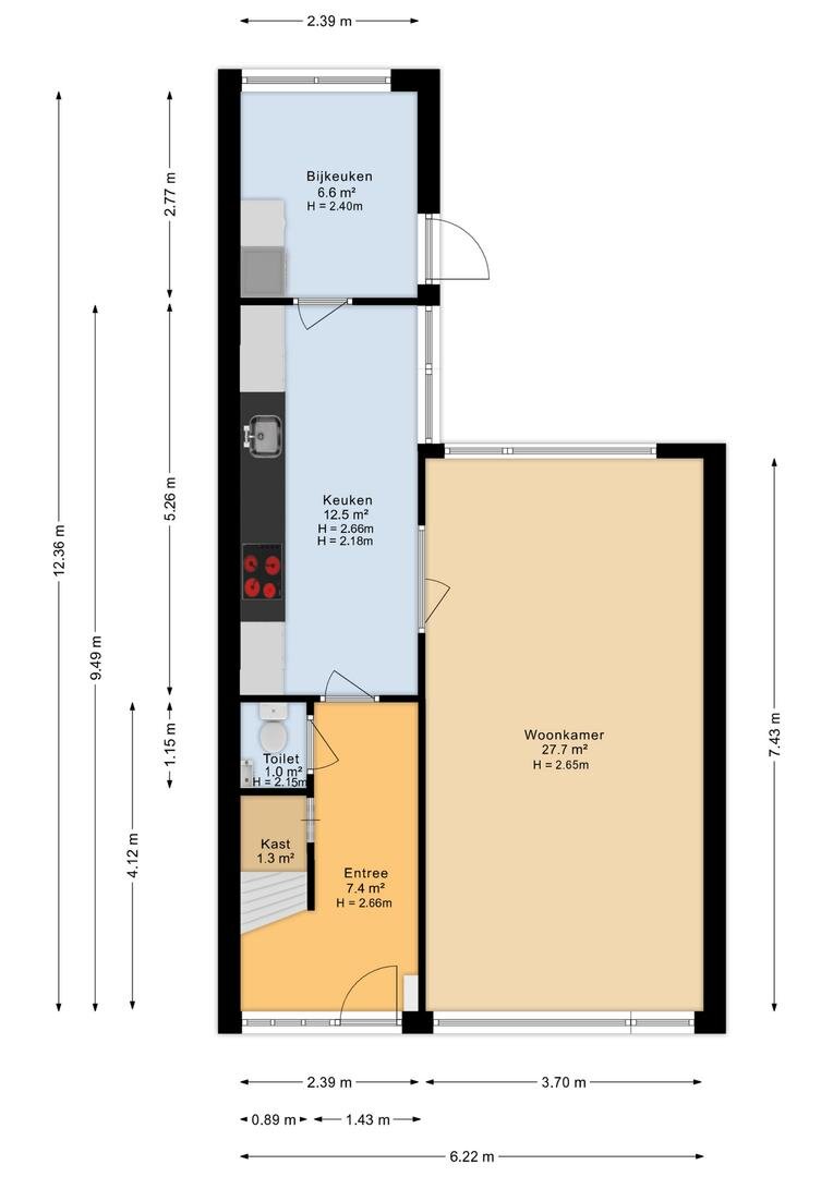
- entree, hal met trapopgang
- vernieuwde meterkast
- modern toilet met fonteintje
- gemoderniseerde keuken (2021) met inbouwapparatuur: combi-oven, inductiekookplaat, afzuigkap, stoom-oven, vaatwasser, koel en vrieskast. Keukenvloer beschikt over vloerverwarming
- lichte woonkamer (circa 27 m2) door grote raampartijen
- bijkeuken met wasmachineaansluiting
- vrijstaande houten schuur met overkapping

1e verdieping:
- overloop
- 1e en 2e slaapkamer aan de achterzijde van de woning (circa 7 en 15 m2)
- balkon
- moderne badkamer (2021) v.v. inloopdouche, 2e toilet en wastafel met meubel
- 3e slaapkamer aan de voorzijde van de woning (circa 12 m2)
- vaste trap naar 2e verdieping

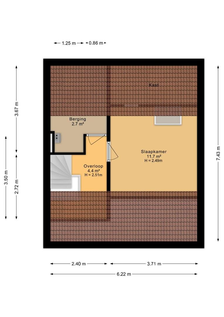
2e verdieping:
- overloop
- berging met cv-opstelling
- 4e slaapkamer (circa 12 m2) met dakraam

Algemeen:
- gebruiksoppervlakte wonen 124 m2 en inhoud 426 m3
- perceel 152 m2 eigen grond
- bouwjaar 1973
- energielabel C
- gemoderniseerd
- houten kozijnen met dubbele beglazing
- zinkwerk vernieuwd
- centraal verwarmd middels cv-ketel: Remeha Avanta uit 2019, eigendom
- aanvaardingstermijn in overleg




De woning is gemeten op basis van de Branche Brede Meetinstructie (BBMI). Deze meetinstructie is bedoeld om een meer eenduidige manier van meten toe te passen voor het geven van een indicatie van de gebruiksoppervlakte. De Meetinstructie sluit verschillen in meetuitkomsten niet volledig uit, door bijvoorbeeld interpretatieverschillen, afrondingen of beperkingen bij het uitvoeren van de meting.

De Vos Makelaardij B.V. staat niet in voor de juistheid van de plattegronden en aanvaardt hiervoor geen aansprakelijkheid.

Over deze woning

Locatie

Over dit object

Overdracht
Statusbeschikbaar
Prijs€ 269.000 k.k.
Bouw
Bouwjaar1973
Bouwvormbestaande bouw
Type ObjectWoonhuis
HoofdfunctieWoonruimte
Indeling
Woonoppervlakte124 m²
Perceeloppervlakte152 m²
Woning Inhoud426 m³
Kamers5 (4 slaapkamers)
Energie
EnergielabelC

Plan een bezichtiging

Vraag direct een bezichtiging aan voor deze woning. We zullen zo snel mogelijk contact met u opnemen om een afspraak te maken.

*
*
*

Lees onze voorwaarden: Cookies, Disclaimer en Privacy