Kastanjeleane 36

Kastanjeleane 36
STIENS

Vraagprijs:
€ 475.000 k.k.

Kastanjeleane 36, STIENS

woningtype
Woonhuis

woonoppervlakte
156 m²

Aantal kamers
6 kamers, 5 slaapkamers

Locatie
STIENS

Foto's

Omschrijving

Instapklare en energiezuinige twee-onder-één-kapwoning in Stiens! Deze fraaie en ruime (156 m2!) eengezinswoning is in de afgelopen jaren gemoderniseerd en verduurzaamd. Door o.a het toevoegen van een hybride warmtepomp, warmtepompboiler, volledige isolatie, kunststof kozijnen met HR++ beglazing en 16 zonnepanelen komt het energielabel op A++. Verder beschikt de woning over 5 slaapkamers, een heerlijke woonkamer met vloerverwarming en moderne open keuken, aangebouwde overkapping, jacuzzi (ter overname) en een carport. Kortom een heerlijke woning die voelt als een warme jas!

Dorp Stiens
Stiens is het grootste dorp van de gemeente Leeuwarden. Stiens telt ongeveer 8000 inwoners en ligt aan de provinciale weg de N357 ten noorden van de stad Leeuwarden. Het dorp heeft een hoog voorzieningenniveau met o.a. winkels (Hema, Kruidvat, Zeeman, Pearle, Blokker), diverse supermarkten, basisscholen, Sportcentrum ‘It Gryn’ (binnenzwembad, buitenzwembad en sporthallen) sportvelden, cultureel centrum “De Skalm”, kinderboerderij, etc. De bevolking kent een grote verscheidenheid: oud-inwoners, nieuwe Friese import en import van elders. Er zijn goede busverbindingen met Leeuwarden.

Indeling van de woning:

Begane grond:
- entree
- modern toilet met fonteintje
- hal met meterkast en trapopgang
- L-vormige woonkamer (37 m2) met pelletkachel en schuifpui naar de achtertuin
- fraaie open keuken met inbouwapparatuur: combi-inductiekookplaat, vaatwasser, heetwaterkraan en oven
- bijkeuken
- berging
- aangebouwde overkapping
- overkapping met jacuzzi

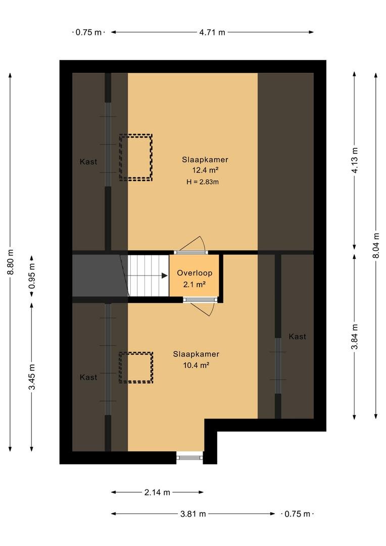
1e verdieping:
- overloop
- 1e slaapkamer aan de voorzijde (circa 11 m2)
- 2e slaapkamer (circa 9 m2) met balkon en vaste kast
- moderne badkamer met 2e toilet, wastafel met meubel en dubbele inloopdouche!
- 3e slaapkamer (circa 12 m2) aan de achterzijde van de woning met vaste kast
- berging met warmtepompopstelling, bergruimte en wasmachineaansluiting
- vaste trap

2e verdieping:
- overloop
- 4e en 5e slaapkamer (circa 10 en 12 m2)

Algemeen:
- gebruiksoppervlakte wonen 156 m2 en inhoud 545 m3
- perceel 344 m2 eigen grond
- bouwjaar 1995
- energielabel A++
- volledig geïsoleerd
- kunststof kozijnen met HR++ beglazing
- centraal verwarmd middels hybride warmtepomp,
- warmtepompboiler
- 16 zonnepanelen
- laadpaal in carport (ter overname)
- aanvaarding in overleg


De woning is gemeten op basis van de Branche Brede Meetinstructie (BBMI). Deze meetinstructie is bedoeld om een meer eenduidige manier van meten toe te passen voor het geven van een indicatie van de gebruiksoppervlakte.
De Meetinstructie sluit verschillen in meetuitkomsten niet volledig uit, door bijvoorbeeld interpretatieverschillen, afrondingen of beperkingen bij het uitvoeren van de meting.

De Vos Makelaardij staat niet in voor de juistheid van de plattegronden en aanvaardt hiervoor geen aansprakelijkheid.

Over deze woning

Locatie

Over dit object

Overdracht
Statusbeschikbaar
Prijs€ 475.000 k.k.
Bouw
Bouwjaar1994
Bouwvormbestaande bouw
Type ObjectWoonhuis
HoofdfunctieWoonruimte
Indeling
Woonoppervlakte156 m²
Perceeloppervlakte344 m²
Woning Inhoud545 m³
Kamers6 (5 slaapkamers)
Energie
EnergielabelA++

Plan een bezichtiging

Vraag direct een bezichtiging aan voor deze woning. We zullen zo snel mogelijk contact met u opnemen om een afspraak te maken.

*
*
*

Lees onze voorwaarden: Cookies, Disclaimer en Privacy