It Uleboerd 83

It Uleboerd 83
LEEUWARDEN

Vraagprijs:
€ 565.000 k.k.

It Uleboerd 83, LEEUWARDEN

woningtype
Woonhuis

woonoppervlakte
156 m²

Aantal kamers
5 kamers, 4 slaapkamers

Locatie
LEEUWARDEN

Foto's

Omschrijving

Instapklare twee-onder-één-kapwoning in de kindvriendelijke woonwijk Techum met royale oprit en garage! Deze heerlijke gezinswoning is gelegen op een perceel van 321 m2 en zonnige achtertuin op het westen. De woning is gebouwd in 2018 en is vanaf de bouw direct uitgebouwd aan achterzijde. Samen met de open keuken geeft dit een fijne leefruimte en door de openslaande deuren een fijne verbinding naar de achtertuin. Verder beschikt de woning over 4 ruime slaapkamers, moderne keuken en badkamer, kunststof kozijnen met HR++ en energielabel A++.

Techum
De woning is gelegen in de wijk Techum, een rustige en kindvriendelijke woonomgeving in het zuidoosten van Leeuwarden. In de nabije omgeving zijn diverse voorzieningen aanwezig zoals scholen, sportverenigingen, winkels en openbaar vervoer. De uitvalswegen naar de rest van Leeuwarden en omgeving zijn goed bereikbaar.

Van harte welkom om deze instapklare woning te komen bekijken!

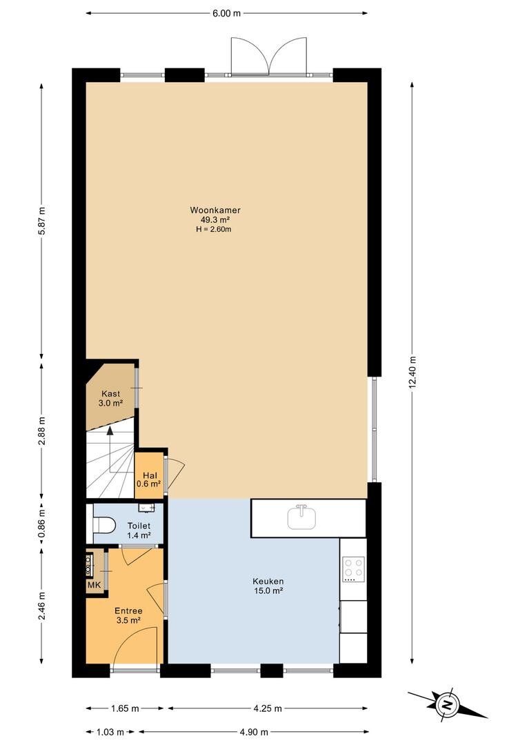
Indeling van de woning:

Begane grond:
- gehele begane grond v.v. vloerverwarming en PVC vloer
- entree, hal met meterkast
- modern toilet met fonteintje
- open keuken met composiet-werkblad en inbouwapparatuur: Quooker, inductiekookplaat, afzuigkap, stoomoven, combi-oven, koelkast, vriezer en vaatwasser
- trapopgang en trapkast
- royale woonkamer (circa 49 m2) door de uitbouw aan de achterzijde, voorzien van openslaande deuren naar de zonnige achtertuin

1e verdieping:
- overloop
- 1e en 2e slaapkamer aan de voorzijde van de woning (circa 8 en 14 m2), beide voorzien van dakkapel
- moderne badkamer met vloerverwarming, dubbele wastafel, ligbad en inloopdouche
- 3e slaapkamer aan de achterzijde van de woning (circa 16 m2)
- vaste trap naar 2e verdieping

2e verdieping
- overloop met witgoed opstelling
- 4e slaapkamer (circa 14 m2) met dakraam en kastenwand
- vlizotrap naar bergzolder

Tuin
De zonnige achtertuin op het westen is voorzien meerdere terrassen. Daarbij een vrijstaande garage met vliering en een ruime oprit voor meerdere auto's.


Algemeen:
- gebruiksoppervlakte wonen 156 m2 en inhoud 564 m3
- perceel 321 m2 eigen grond
- bouwjaar 2018
- energielabel A++
- 12 zonnepanelen (400 WP), geplaatst in 2022, eigendom
- vloerverwarming begane grond en badkamer
- volledig geïsoleerd
- oprit met ruimte voor 4 auto's
- kunststof kozijnen met HR++ beglazing
- centraal verwarmd middels stadswarming
- aanvaardingstermijn in overleg




De woning is gemeten op basis van de Branche Brede Meetinstructie (BBMI). Deze meetinstructie is bedoeld om een meer eenduidige manier van meten toe te passen voor het geven van een indicatie van de gebruiksoppervlakte.
De Meetinstructie sluit verschillen in meetuitkomsten niet volledig uit, door bijvoorbeeld interpretatieverschillen, afrondingen of beperkingen bij het uitvoeren van de meting.

De Vos Makelaardij staat niet in voor de juistheid van de plattegronden en aanvaardt hiervoor geen aansprakelijkheid.

Over deze woning

Locatie

Over dit object

Overdracht
Statusonder bod
Prijs€ 565.000 k.k.
Bouw
Bouwjaar2018
Bouwvormbestaande bouw
Type ObjectWoonhuis
HoofdfunctieWoonruimte
Indeling
Woonoppervlakte156 m²
Perceeloppervlakte321 m²
Woning Inhoud564 m³
Kamers5 (4 slaapkamers)
Energie
EnergielabelA++

Plan een bezichtiging

Vraag direct een bezichtiging aan voor deze woning. We zullen zo snel mogelijk contact met u opnemen om een afspraak te maken.

*
*
*

Lees onze voorwaarden: Cookies, Disclaimer en Privacy