Honthorststraat 6

Honthorststraat 6
LEEUWARDEN

Vraagprijs:
€ 215.000 k.k.

Honthorststraat 6, LEEUWARDEN

woningtype
Woonhuis

woonoppervlakte
74 m²

Aantal kamers
4 kamers, 3 slaapkamers

Locatie
LEEUWARDEN

Foto's

Omschrijving

HET MAXIMALE AANTAL AFSPRAKEN VOOR DEZE WONING IS BEREIKT en we plannen momenteel geen nieuwe bezichtigingsafspraken in. Als u geïnteresseerd bent om op de wachtlijst te worden geplaatst, neem dan contact met ons op via de contactbutton op de site. Zodra er een bezichtigingsmogelijkheid beschikbaar is, zullen we contact met u opnemen op basis van de volgorde van aanmelding op de wachtlijst.

Instapklare jaren '30 woning! Van harte welkom om deze leuke, modern ingerichte woning, te komen bekijken! De woning is gelegen in het hart van de populaire woonwijk Huizum en vlakbij het Julianapark. Verder wordt deze woning gekenmerkt door de aanwezigheid van een recente keuken en badkamer, grotendeels voorzien van kunststof kozijnen met HR++ en 3 slaapkamers.

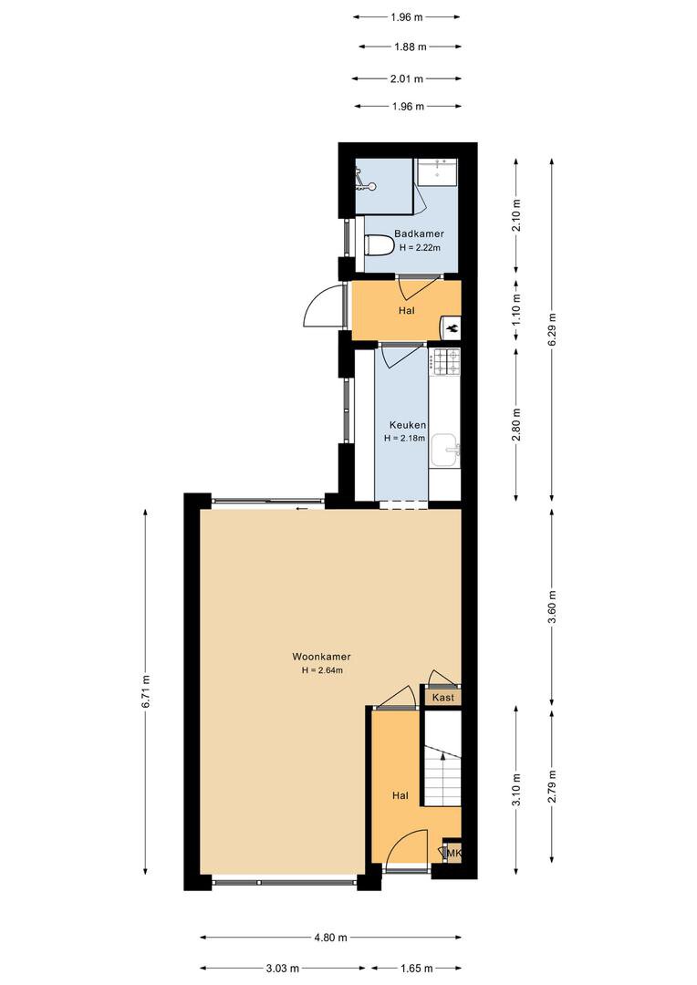
Indeling van de woning:

Begane grond:
- entree, hal met trapopgang
- meterkast
- trapkast
- L-vormige woonkamer met schuifpui, vaste kast en fraaie laminaatvloer (circa 28 m2)
- moderne keuken met fraai composietblad, 4-pits gasfornuis, combi oven, vaatwasser en afzuigkap
- bijkeuken/hal met cv-opstelling
- (zeer) recente badkamer (2022) met fraaie inloopdouche, toilet en wastafel met meubel

1e verdieping:
- overloop met wasmachine aansluiting, vaste kast en toegang tot het droogplat
- 1e slaapkamer aan de achterzijde met dakkapel circa 8 m2)
- 2e en 3e slaapkamer (circa 4 en 7 m2) aan de voorzijde van de woning en voorzien van een dakkapel
- vlizotrap naar de bergzolder

Algemeen:
- gebruiksoppervlakte gehele woning 74 m2 en inhoud 275 m3
- 93 m2 eigen grond
- instapklare tussenwoning en zeer onderhoudsvriendelijk
- de woning is in zijn geheel voorzien van kunststof kozijnen met HR ++ beglazing en trespa boeidelen
- energielabel D
- dakdekking van dakkapellen zijn vernieuwd + dakbedekking van aanbouw
- warm water en verwarming middels CV- ketel (Remeha Tzerra 2013, eigendom)
- aanvaarding in overleg


De verkoopinformatie is door ons met de nodige zorgvuldigheid samengesteld. Onzerzijds wordt echter geen enkele aansprakelijkheid aanvaard voor enige onvolledigheid, onjuistheid of anderszins, dan wel de gevolgen daarvan. Aan de informatie kunnen geen rechten worden ontleend.

Toelichtingsclausule NEN2580. De Meetinstructie is gebaseerd op de NEN2580. De Meetinstructie is bedoeld om een meer eenduidige manier van meten toe te passen voor het geven van een indicatie van de gebruiksoppervlakte. De Meetinstructie sluit verschillen in meetuitkomsten niet volledig uit, door bijvoorbeeld interpretatieverschillen, afrondingen of beperkingen bij het uitvoeren van de meting.

Over deze woning

Locatie

Over dit object

Overdracht
Statusverkocht
Prijs€ 215.000 k.k.
Bouw
Bouwjaar1932
Bouwvormbestaande bouw
Type ObjectWoonhuis
HoofdfunctieWoonruimte
Indeling
Woonoppervlakte74 m²
Perceeloppervlakte93 m²
Woning Inhoud275 m³
Kamers4 (3 slaapkamers)
Energie
EnergielabelD

Helaas

Dit object is niet meer beschikbaar

Bekijk ons gehele aanbod of voor meer informatie kunt u contact met ons opnemen.
Bel ons op +31582037072 voor direct contact.

Contact opnemen