Hinkeslân 7

Hinkeslân 7
GOUTUM

Vraagprijs:
€ 489.000 k.k.

Hinkeslân 7, GOUTUM

woningtype
Woonhuis

woonoppervlakte
125 m²

Aantal kamers
5 kamers, 4 slaapkamers

Locatie
GOUTUM

Foto's

Omschrijving

Instapklare hoekwoning in Goutum! Zoekt u een instapklare en energiezuinige woning met een ruime kavel van bijna 300 m2? Dan is dit de woning die u zoekt. Centraal in Goutum-Súd is deze hoekwoning gelegen. De woning is onder architectuur gebouwd, heeft een boerderij achtige uitstraling en is van alle gemakken voorzien, goed onderhouden, onderhoudsarm door kunststof kozijnen en voorzien van energielabel A++. Dit goede energielabel wordt o.a. gevormd door Triple beglazing, 10 zonnepanelen, lucht-lucht warmtepomp en volledige isolatieschil. Verder wordt de woning gekenmerkt door de aanwezigheid van 4 slaapkamers, fijne lichte woonkamer met open keuken en achtertuin (van bijna 16 m diep!) met eigen oprit.

Goutum-Súd
De eengezinswoning is gelegen in Goutum-Súd. Deze leefomgeving geeft het beste van beide werelden - een rustige en pittoreske omgeving met alle voorzieningen binnen handbereik. Met uitstekende scholen en recreatiemogelijkheden in de buurt is dit de perfecte plek om te settelen en van het leven te genieten. Gelegen op slechts enkele minuten van de A32 is het de ideale uitvalsbasis voor het verkennen van de regio of voor een snelle pendel naar het werk.

Indeling van de woning:

Begane grond:
- gehele begane grond is voorzien van vloerverwarming
- entree, hal met meterkast
- modern toilet met fonteintje
- trapkast
- moderne open keuken met spoeleiland en inbouwapparatuur: inductiekookplaat, vaatwasser, koelkast, vrieskast en combi-oven
- fijne en lichte woonkamer (circa 32 m2) met loopdeur naar naar de royale tuin

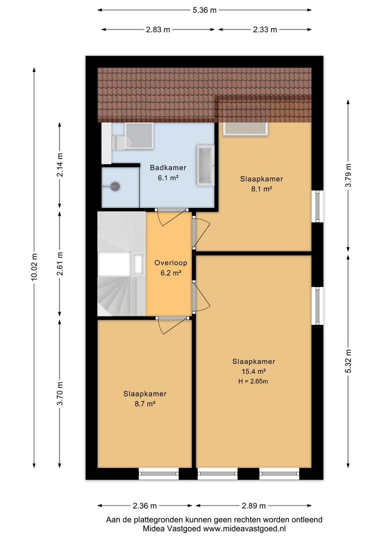
1e verdieping:
- overloop
- 1e slaapkamer aan de voorzijde van de woning (circa 9 m2)
- ruime 2e slaapkamer aan de voorzijde (15 m2)
- moderne badkamer met vloerverwarming, inloopdouche, 2e toilet en wastafel met meubel
- 3e slaapkamer (circa 8 m2) aan de achterzijde van de woning
- vaste trap naar 2e verdieping

2e verdieping:
- royale overloop met wasmachineaansluiting
- 4e slaapkamer (circa 13 m2)
- vliering

Tuin
- de hoekwoning beschikt over een royale tuin met eigen oprit. Verder voorzien van een vrijstaande houten berging met overkapping.


Algemeen:
- gebruiksoppervlakte wonen 125 m2 en inhoud 443 m3
- perceel 297 m2 eigen grond
- bouwjaar 2017
- energielabel A++
- volledig geïsoleerd
- kunststof kozijnen met Triple beglazing
- eigen oprit aan voorzijde van het perceel
- 10 zonnepanelen van toepassing (10 x 265 wp)
- centraal verwarmd middels stadsverwarming + lucht-lucht warmtepomp
- overdracht in overleg


De woning is gemeten op basis van de Branche Brede Meetinstructie (BBMI). Deze meetinstructie is bedoeld om een meer eenduidige manier van meten toe te passen voor het geven van een indicatie van de gebruiksoppervlakte.
De Meetinstructie sluit verschillen in meetuitkomsten niet volledig uit, door bijvoorbeeld interpretatieverschillen, afrondingen of beperkingen bij het uitvoeren van de meting.

De Vos Makelaardij staat niet in voor de juistheid van de plattegronden en aanvaardt hiervoor geen aansprakelijkheid.

Over deze woning

Locatie

Over dit object

Overdracht
Statusbeschikbaar
Prijs€ 489.000 k.k.
Bouw
Bouwjaar2017
Bouwvormbestaande bouw
Type ObjectWoonhuis
HoofdfunctieWoonruimte
Indeling
Woonoppervlakte125 m²
Perceeloppervlakte297 m²
Woning Inhoud472 m³
Kamers5 (4 slaapkamers)
Energie
EnergielabelA++

Plan een bezichtiging

Vraag direct een bezichtiging aan voor deze woning. We zullen zo snel mogelijk contact met u opnemen om een afspraak te maken.

*
*
*

Lees onze voorwaarden: Cookies, Disclaimer en Privacy