Hille Veenstrastrjitte 8

Hille Veenstrastrjitte 8
KOLLUMERSWEACH

Vraagprijs:
€ 325.000 k.k.

Hille Veenstrastrjitte 8, KOLLUMERSWEACH

woningtype
Woonhuis

woonoppervlakte
108 m²

Aantal kamers
5 kamers, 4 slaapkamers

Locatie
KOLLUMERSWEACH

Foto's

Omschrijving

Gelijkvloers wonen! Dat is mogelijk bij deze goed onderhouden levensloopbestendige 2-onder-1 kapwoning. Met een royale slaapkamer en badkamer beneden is het comfortabel gelijkvloers wonen. Naast een slaapkamer beneden beschikt de woning over nog 3 (slaap)kamers op de 1e verdieping. Door de centrale ligging van de woning, zijn voorzieningen in het dorp op loop of fietsafstand. Naast de fijne woning beschikt de woning over een optionele mogelijkheid tot het aankopen van een losse stenen garage met elektrische bediening en loopdeur. De woning is vanuit de bouw volledig geïsoleerd, wat resulteert in een energielabel B.

Nieuwsgierig geworden? Neem gerust contact op en kom deze woning bezichtigen!

Omgeving
Kollumerzwaag (Kollumersweach) staat bekend om zijn rustige en groene karakter en is een fijne plek om te wonen voor wie ruimte en een dorpse sfeer zoekt. In het dorp zijn diverse voorzieningen aanwezig, waaronder een supermarkt, basisschool, bushaltes en sportfaciliteiten. Voor uitgebreidere voorzieningen zijn Kollum, Buitenpost en De Westereen binnen enkele minuten per auto bereikbaar. Buitenpost en De Westereen hebben een treinstation met directe treinverbinding naar Groningen en Leeuwarden.

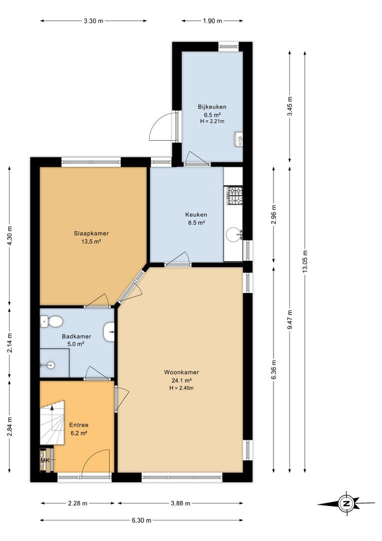
Indeling van de woning

Begane grond
-entree/hal met meterkast
-lichte woonkamer
-keuken voorzien van 4-pits gasfornuis en afzuigkap
-bijkeuken met wasmachineaansluiting en cv-opstelling
-slaapkamer op begane grond, met elektrische zonwering (circa 14 m²)
-badkamer met douchecabine, wastafel, toilet en afzuiging

1e verdieping
-royale overloop (10m²)
-slaapkamer 1 (circa 4 m²)
-ruime 2e en 3e slaapkamer (beiden circa 13 m²)

Vliering
-te gebruiken als opbergruimte, bereikbaar via vlizotrap

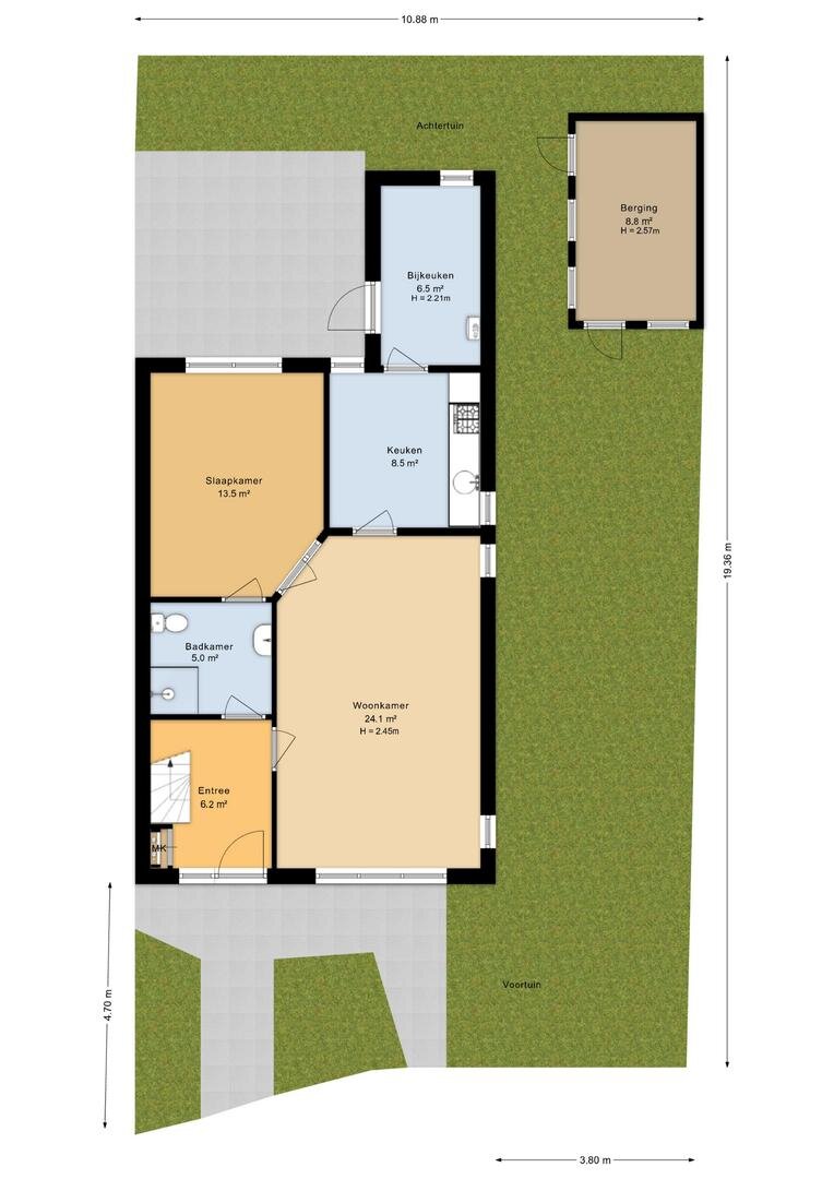
Buiten
-vrijstaande houten schuur
-extra garagebox met elektrische deur en loopdeur
-tuin rondom

Algemeen
-gebruiksoppervlakte wonen circa 108 m² en inhoud 405 m³
-perceeloppervlakte circa 205 m² (perceel dient nog te worden gesplitst, kosten voor verkoper)
-energielabel B (geldig t/m 17-03-2036)
-dak met geglazuurde pannen
-levensloopbestendig wonen, toegankelijk voor ouderen en mindervaliden
-warm water en verwarming middels Nefit combiketel (2007, eigendom)
-extra garagebox (circa 17 m²) optioneel bij te kopen (vraagprijs € 19.000,-)
-direct aanvaardbaar

De woning is gemeten op basis van de Branche Brede Meetinstructie (BBMI). Deze meetinstructie is bedoeld om een meer eenduidige manier van meten toe te passen voor het geven van een indicatie van de gebruiksoppervlakte. De Meetinstructie sluit verschillen in meetuitkomsten niet volledig uit, door bijvoorbeeld interpretatieverschillen, afrondingen of beperkingen bij het uitvoeren van de meting.

De Vos Makelaardij B.V. staat niet in voor de juistheid van de plattegronden en aanvaardt hiervoor geen aansprakelijkheid.

Over deze woning

Locatie

Over dit object

Overdracht
Statusonder bod
Prijs€ 325.000 k.k.
Bouw
Bouwjaar1996
Bouwvormbestaande bouw
Type ObjectWoonhuis
HoofdfunctieWoonruimte
Indeling
Woonoppervlakte108 m²
Perceeloppervlakte205 m²
Woning Inhoud415 m³
Kamers5 (4 slaapkamers)
Energie
EnergielabelB

Plan een bezichtiging

Vraag direct een bezichtiging aan voor deze woning. We zullen zo snel mogelijk contact met u opnemen om een afspraak te maken.

*
*
*

Lees onze voorwaarden: Cookies, Disclaimer en Privacy