Felixwei 70

Felixwei 70
STIENS

Vraagprijs:
€ 279.000 k.k.

Felixwei 70, STIENS

woningtype
Woonhuis

woonoppervlakte
98 m²

Aantal kamers
4 kamers, 3 slaapkamers

Locatie
STIENS

Foto's

Omschrijving

Ben jij op zoek naar een nette twee-onder-één-kapwoning met eigen oprit, garage en een moderne tuin met een fraaie overkapping? Dan is deze woning aan de Felixwei 70 in Stiens absoluut het bekijken waard.

Dankzij de praktische indeling, de nette woonkamer met veel lichtinval en de verzorgde afwerking voelt het huis direct comfortabel aan. Door de jaren heen is de woning netjes onderhouden en op diverse punten verbeterd, waardoor je hier met minimale inspanning je eigen thuis kunt creëren.

De achtertuin is verzorgd aangelegd en beschikt over een ruime houten overkapping. Een heerlijke plek om het hele jaar door beschut buiten te zitten. De eigen oprit en garage zorgen bovendien voor extra gemak en bergruimte.

Stiens is een levendig en compleet dorp net boven Leeuwarden, waar je profiteert van rust, ruimte én alle dagelijkse voorzieningen binnen handbereik. Het dorp heeft een sterk eigen karakter met een actief verenigingsleven, diverse sportclubs, basisscholen en een uitgebreid winkelaanbod in het centrum. De woonwijken zijn ruim opgezet en kindvriendelijk, met veel groen en speelvoorzieningen.

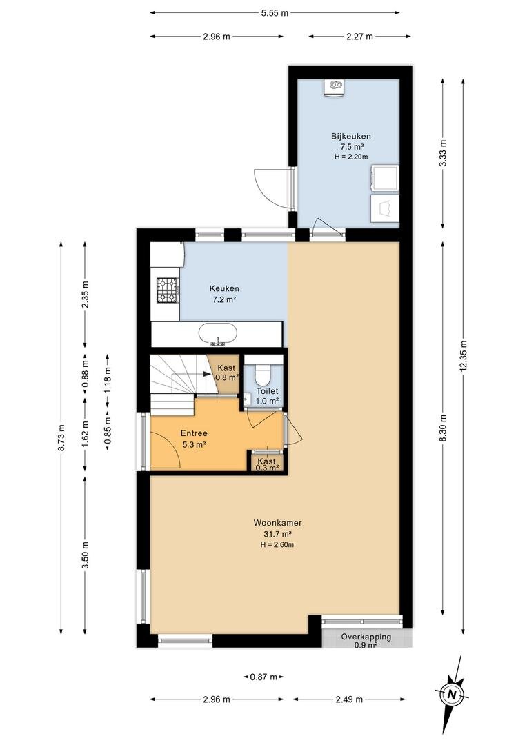
Indeling

Begane grond
- Entree/hal met meterkast en trapopgang en toegang tot het toilet en de woonkamer
- Toiletruimte
- Lichte woonkamer
- Halfopen keuken met inbouwapparatuur (4-pits gasfornuis)
- Aangebouwde bijkeuken met witgoedaansluiting en cv-opstelling

Eerste verdieping
- overloop
- 1e slaapkamer (circa 10 m²) aan de voorzijde van de woning
- 2e slaapkamer (circa 11 m²) aan de voorzijde van de woning
- 3e slaapkamer (circa 7 m²) aan de achterzijde van de woning
- badkamer (vernieuwd in 2016)

Buiten
De woning beschikt over een verzorgde achtertuin op het zuiden, met een in 2020 geplaatste Douglas overkapping. Een fijne plek om beschut buiten te zitten.
Daarnaast is er:
- eigen oprit met parkeergelegenheid
- vrijstaande garage

Algemeen
- bouwjaar: 1981
- gebruiksoppervlakte wonen: ca. 98 m²
- externe bergruimte (garage): ca. 16 m²
- 3 slaapkamers
- badkamer vernieuwd in 2016
- dak vernieuwd (bitumen) in 2012
- vloerisolatie (2013)
- HR+ beglazing
- glasvezel aanwezig
- cv-installatie AWB in eigendom (2007)
- aanvaarding: in overleg

De woning is gemeten conform de NEN 2580 meetnorm en de Branche Brede Meetinstructie (BBMI). De meetinstructie beoogt een eenduidige wijze van meten, maar verschillen in uitkomsten blijven mogelijk door interpretatieverschillen, afrondingen of beperkingen bij het uitvoeren van de meting.

De Vos Makelaardij staat niet in voor de juistheid van de plattegronden en aanvaardt hiervoor geen aansprakelijkheid.

Over deze woning

Locatie

Over dit object

Overdracht
Statusonder bod
Prijs€ 279.000 k.k.
Bouw
Bouwjaar1981
Bouwvormbestaande bouw
Type ObjectWoonhuis
HoofdfunctieWoonruimte
Indeling
Woonoppervlakte98 m²
Perceeloppervlakte244 m²
Woning Inhoud336 m³
Kamers4 (3 slaapkamers)
Energie
EnergielabelC

Plan een bezichtiging

Vraag direct een bezichtiging aan voor deze woning. We zullen zo snel mogelijk contact met u opnemen om een afspraak te maken.

*
*
*

Lees onze voorwaarden: Cookies, Disclaimer en Privacy