de Schepperstraat 2 A

de Schepperstraat 2 A
BUITENPOST

Vraagprijs:
€ 495.000 k.k.

de Schepperstraat 2 A, BUITENPOST

woningtype
Woonhuis

woonoppervlakte
387 m²

Aantal kamers
6 kamers, 4 slaapkamers

Locatie
BUITENPOST

Foto's

Omschrijving

Ruim wonen in Buitenpost! Op een ideale woonlocatie, op loopafstand van het treinstation en dicht bij het centrum van Buitenpost, bevindt zich deze voormalige bedrijfsruimte. Door een bestemmingsplanwijziging is de bestemming gewijzigd naar wonen. De ruimtes zijn (zeer) ruim bemeten (bijna 400 m2!). In de loop van de jaren is het gebouw geïsoleerd en gemoderniseerd. Het energielabel is dan ook energielabel B. De ruimtes in de woning bieden volop mogelijkheden. In totaal beschikt de woning over 5 kamers en een heerlijke woonkeuken. Verder beschikt de woning over kunststof kozijnen met HR++-beglazing, meerdere airco's en een dakterras.

Buitenpost kenmerkt zich door haar hoge voorzieningsniveau met o.a. een winkelcentrum, treinstation (Groningen-Leeuwarden), sportaccommodaties, zwembad, basis- en voortgezet onderwijs en diverse zorginstellingen. Buitenpost is centraal gelegen ten opzichte van de provinciale wegen richting Leeuwarden, Groningen, Drachten en Dokkum. De woning bevindt zich op loopafstand van een kinderopvang en de fraaie botanische tuin 'De Kruidhof'.

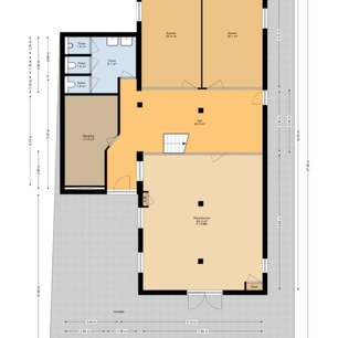
Indeling van de woning:

Begane grond:
- entree
- ruime hal met vide en trapopgang
- berging, goede ruimte voor een badkamer
- moderne toiletgroep (3 toiletten) met dubbele wastafel
- (slaap)kamer 1 en 2 aan de achterzijde (beiden 26 m2)
- ruime woonkamer (circa 65 m2) aan de voorzijde met openslaande deuren

1e verdieping:
- overloop met inpandige berging
- royale 3e (slaap)kamer (circa 74 m2)
- woonkeuken met open keuken met vaatwasser, losse koelkast en close-in-boiler
- 4e (slaap)kamer (circa 35 m2)
- cv-ruimte
- dakterras

Algemeen:
- gebruiksoppervlakte wonen 389 m2 en inhoud 1383 m3
- perceel 413 m2 eigen grond
- bouwjaar 1985
- energielabel B
- woning is volledig geïsoleerd
- meerdere airco's van toepassing
- HR++ beglazing
- centraal verwarmd met Remeha Quinta Pro cv-ketel, eigendom
- aanvaarding in overleg

Eerste vier foto's zijn ter illustratie, hier kunnen geen rechten aan worden ontleend.

De woning is gemeten op basis van de Branche Brede Meetinstructie (BBMI). Deze meetinstructie is bedoeld om een meer eenduidige manier van meten toe te passen voor het geven van een indicatie van de gebruiksoppervlakte. De Meetinstructie sluit verschillen in meetuitkomsten niet volledig uit, door bijvoorbeeld interpretatieverschillen, afrondingen of beperkingen bij het uitvoeren van de meting.

De Vos Makelaardij B.V. staat niet in voor de juistheid van de plattegronden en aanvaardt hiervoor geen aansprakelijkheid.

Over deze woning

Locatie

Over dit object

Overdracht
Statusbeschikbaar
Prijs€ 495.000 k.k.
Bouw
Bouwjaar1985
Bouwvormbestaande bouw
Type ObjectWoonhuis
HoofdfunctieWoonruimte
Indeling
Woonoppervlakte387 m²
Perceeloppervlakte413 m²
Woning Inhoud1383 m³
Kamers6 (4 slaapkamers)
Energie
EnergielabelB

Plan een bezichtiging

Vraag direct een bezichtiging aan voor deze woning. We zullen zo snel mogelijk contact met u opnemen om een afspraak te maken.

*
*
*

Lees onze voorwaarden: Cookies, Disclaimer en Privacy