de Hooidollen 131

de Hooidollen 131
LEEUWARDEN

Vraagprijs:
€ 249.000 k.k.

de Hooidollen 131, LEEUWARDEN

woningtype
Woonhuis

woonoppervlakte
119 m²

Aantal kamers
5 kamers, 4 slaapkamers

Locatie
LEEUWARDEN

Foto's

Omschrijving

Op zoek naar een instapklare hoekwoning met 4 slaapkamers en royale tuin op het zuiden? Dan is dit de woning die je zoekt! De woning beschikt over een moderne keuken opstelling met inbouwapparatuur, moderne badkamer en ook nog eens een energielabel A! Dit goede energielabel komt door de aanwezigheid van volledige isolering (dak, vloer, muur), airco's en 12 zonnepanelen! Verder beschikt de woning over een heerlijke zonnige tuin op het zuiden, welke fraai is aangelegd en met voorzien overkapping en schuur. Van harte welkom bij deze leuke woning te komen bekijken!

Bilgaard is een groene en ruim opgezette wijk net boven het centrum van Leeuwarden. Hier heb je alles binnen handbereik: winkelcentrum Bilgaard voor de dagelijkse boodschappen, scholen en speelplekken voor kinderen, en sportvoorzieningen zoals zwembad De Blauwe Golf. Het centrum van Leeuwarden bereik je binnen enkele minuten met de fiets of bus, en ook de uitvalswegen zijn snel bereikbaar.


Indeling van de woning:

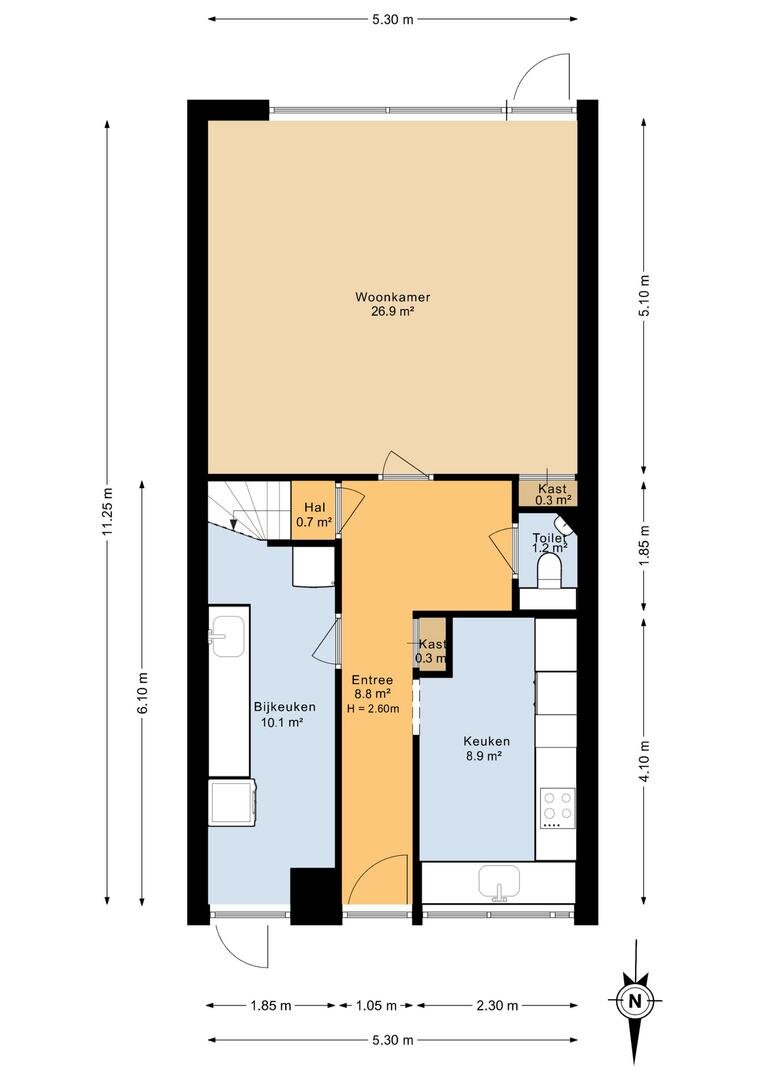
Begane grond:
- entree
- meterkast (ingang aan buitenzijde)
- hal met trapopgang
- bijkeuken met wasmachine aansluiting en bergruimte
- moderne keukenopstelling met inbouwapparatuur: inductiekookplaat, koelkast, afzuigkap en vaatwasser (allen Siemens apparatuur)
- lichte woonkamer (circa 27 m2) met loopdeur naar de zonnige achtertuin op het zuiden

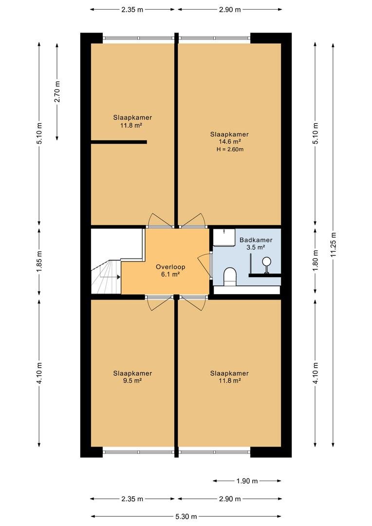
1e verdieping:
- overloop
- 1e en 2e slaapkamer (circa 10 en 12 m2) aan de voorzijde van de woning
- moderne badkamer v.v. inloopdouche, 2e toilet en wastafel met meubel
- 3e en 4e slaapkamer aan de achterzijde van de woning (circa 12 en 15 m2)

De achtertuin is voorzien van fraaie tuinaanleg met zonnig terras, overkapping en houten berging met elektra.

Algemeen:
- gebruiksoppervlakte wonen 119 m2 en inhoud 422 m3
- perceel 155 m2 eigen grond
- energielabel A
- volledig geïsoleerd (vloer, muur en dakisolatie)
- 12 zonnepanelen van toepassing (370 wp)
- houten kozijnen met dubbele beglazing
- centraal verwarmd middels cv-ketel (Intergas, 2012, eigendom)
- airco van toepassing
- aanvaarding in overleg, verwachting is Q1-2026


De woning is gemeten op basis van de Branche Brede Meetinstructie (BBMI). Deze meetinstructie is bedoeld om een meer eenduidige manier van meten toe te passen voor het geven van een indicatie van de gebruiksoppervlakte.
De Meetinstructie sluit verschillen in meetuitkomsten niet volledig uit, door bijvoorbeeld interpretatieverschillen, afrondingen of beperkingen bij het uitvoeren van de meting.

De Vos Makelaardij staat niet in voor de juistheid van de plattegronden en aanvaardt hiervoor geen aansprakelijkheid.

Over deze woning

Locatie

Over dit object

Overdracht
Statusonder bod
Prijs€ 249.000 k.k.
Bouw
Bouwjaar1969
Bouwvormbestaande bouw
Type ObjectWoonhuis
HoofdfunctieWoonruimte
Indeling
Woonoppervlakte119 m²
Perceeloppervlakte155 m²
Woning Inhoud422 m³
Kamers5 (4 slaapkamers)
Energie
EnergielabelA

Plan een bezichtiging

Vraag direct een bezichtiging aan voor deze woning. We zullen zo snel mogelijk contact met u opnemen om een afspraak te maken.

*
*
*

Lees onze voorwaarden: Cookies, Disclaimer en Privacy