Claes Bockes Balckstraat 33

Claes Bockes Balckstraat 33
LEEUWARDEN

Vraagprijs:
€ 274.000 k.k.

Claes Bockes Balckstraat 33, LEEUWARDEN

woningtype
Woonhuis

woonoppervlakte
109 m²

Aantal kamers
4 kamers, 3 slaapkamers

Locatie
LEEUWARDEN

Foto's

Omschrijving

Sfeer, veel ruimte, twee badkamers, een fijne tuin op het noordoosten én een kindvriendelijke wijk: welkom in deze charmante tussenwoning aan de Claes Bockes Balckstraat!

Achter de gevel schuilt een verrassend ruime woning waar karakter en wooncomfort samenkomen. Denk hierbij aan een lichte woonkamer met hoge plafonds en grote raampartijen en een marmeren schouw als blikvangers, een praktische keuken met inbouwapparatuur en een kunststof pui (2024) met openslaande deuren naar een ruime achtertuin van plus minus 40 m². Met 109 m² woonoppervlakte is dit een huis waar je zó in kunt én er nog je eigen draai aan kunt geven. Extra pluspunten zijn de tuin op het noordoosten en de aangebouwde schuur voor extra bergruimte. Door de jaren heen zijn meerdere verbeteringen aan de woning doorgevoerd, waaronder bodem- en dakisolatie (energielabel C) en is de bitumen dakbedekking vervangen in 2016. Kortom: een prettige en verzorgde gezinswoning met sfeer, praktische bergruimte en volop woonplezier.

De woning is gelegen in een rustige en kindvriendelijke woonwijk, op circa 10 minuten loopafstand van het stadscentrum van Leeuwarden. Diverse voorzieningen zoals basisscholen, supermarkten en openbaar vervoer bevinden zich in de directe omgeving. Toch liever met de auto? In de straat is voldoende parkeergelegenheid aanwezig (blauwe zone).

Nieuwsgierig geworden? Maak gerust een afspraak en ervaar deze woning zelf!

Indeling van de woning

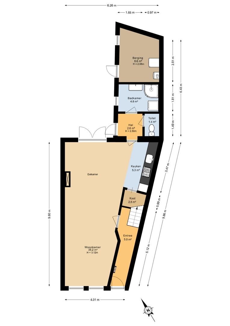
Begane grond
-Voortuin
-Entree/hal met trapopgang en meterkast (5 groepen, 1 aardlek en 1 fase)
-Lichte en ruime woonkamer met marmeren schouw
-Moderne keuken met trapkast en diverse inbouwapparatuur: vaatwasser, 4-pits gasfornuis, afzuigkap en combi-oven
-hal naar badkamer en toilet
-Modern toilet
-Badkamer met douchecabine, wastafelmeubel en wasmachineaansluiting
-Ruime achtertuin met aangebouwde berging (voorzien van elektra) en cv-opstelling

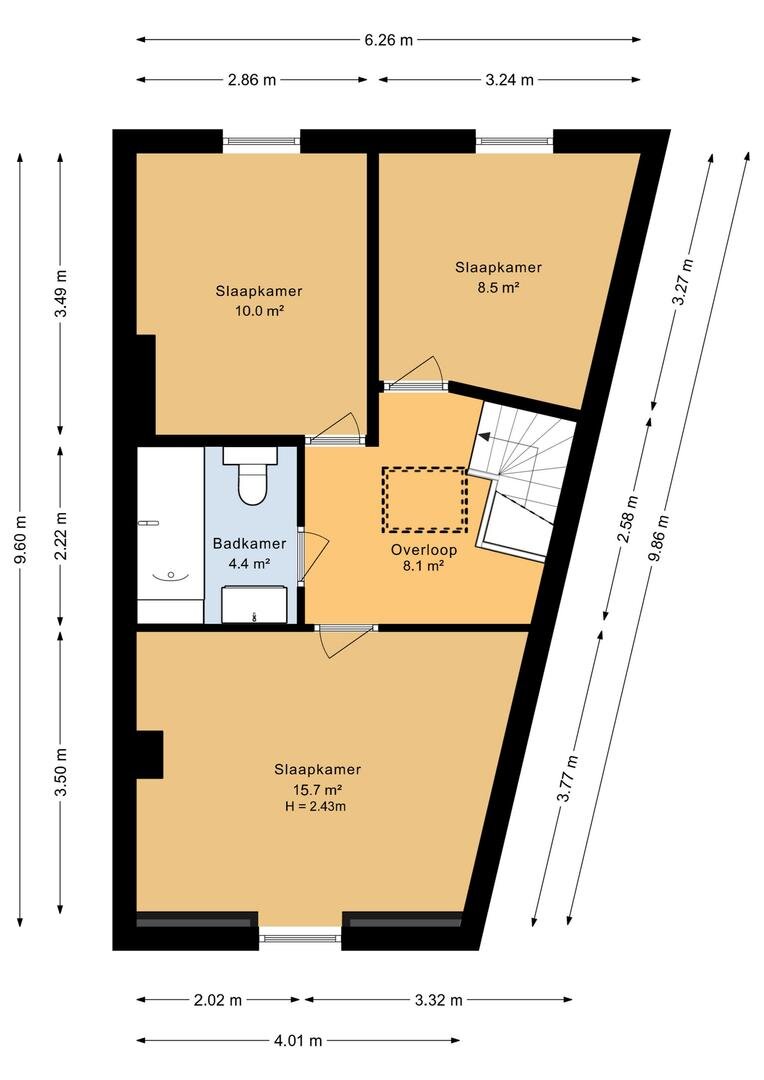
1e verdieping
-Ruime overloop (ca. 8m²) met parketvloer
-1e Slaapkamer (ca. 16 m²) aan de voorzijde
-2e Slaapkamer (ca. 10 m²) aan de achterzijde
-3e Slaapkamer (ca. 9 m²) aan de achterzijde
-Badkamer met ligbad, toilet en wastafelmeubel

Algemeen
-Gebruiksoppervlakte wonen: 109 m²
-Inhoud: ca. 431 m³
-Perceel: 124 m² eigen grond
-Bouwjaar: 1910
-Energielabel C, geldig tot 09-01-2036
-Dubbele beglazing (deels HR++), bodem- en dakisolatie van toepassing
-Verwarming middels cv-ketel: Intergas 2017 (eigendom)
-Ouderdomsclausule en asbestclausule van toepassing
-Aanvaarding in overleg

De woning is gemeten op basis van de Branche Brede Meetinstructie (BBMI). Deze meetinstructie is bedoeld om een meer eenduidige manier van meten toe te passen voor het geven van een indicatie van de gebruiksoppervlakte. De Meetinstructie sluit verschillen in meetuitkomsten niet volledig uit, door bijvoorbeeld interpretatieverschillen, afrondingen of beperkingen bij het uitvoeren van de meting.

De Vos Makelaardij B.V. staat niet in voor de juistheid van de plattegronden en aanvaardt hiervoor geen aansprakelijkheid.

Over deze woning

Locatie

Over dit object

Overdracht
Statusonder bod
Prijs€ 274.000 k.k.
Bouw
Bouwjaar1910
Bouwvormbestaande bouw
Type ObjectWoonhuis
HoofdfunctieWoonruimte
Indeling
Woonoppervlakte109 m²
Perceeloppervlakte124 m²
Woning Inhoud431 m³
Kamers4 (3 slaapkamers)
Energie
EnergielabelC

Plan een bezichtiging

Vraag direct een bezichtiging aan voor deze woning. We zullen zo snel mogelijk contact met u opnemen om een afspraak te maken.

*
*
*

Lees onze voorwaarden: Cookies, Disclaimer en Privacy