Bachstraat 29

Bachstraat 29
LEEUWARDEN

Vraagprijs:
€ 279.000 k.k.

Bachstraat 29, LEEUWARDEN

woningtype
Woonhuis

woonoppervlakte
95 m²

Aantal kamers
4 kamers, 3 slaapkamers

Locatie
LEEUWARDEN

Foto's

Omschrijving

Instapklare en onderhoudsvriendelijke jaren'30 woning in de gewilde Componistenbuurt! Deze fraaie tussenwoning is in de afgelopen jaren gemoderniseerd en verduurzaamd. Door de aanbreng van kunststof kozijnen met HR++, schuimbeton met vloerverwarming en dakisolatie is woning toekomstbestendig en onderhoudsvriendelijk te noemen. Verder wordt de woning gekenmerkt door de aanwezigheid van een moderne keuken en badkamer opstelling, 3 slaapkamers en een zonnige achtertuin op het zuidwesten.

De Componistenbuurt ligt in de gewilde en populaire Vogelwijk vlakbij het centrum van Leeuwarden. De wijk beschikt over diverse voorzieningen zoals een supermarkt en een sportschool. Het centrum van Leeuwarden ligt op loopafstand. Kortom, een mooie buitenkans voor de starters in Leeuwarden!

Van harte welkom om deze leuke woning te komen bekijken!

Indeling van de woning:

Begane grond:
- entree, hal met trapopgang
- vernieuwde meterkast
- lichte woonkamer (circa 29 m2) met vloerverwarming, erker, openslaande deuren en vaste kast
- moderne keukenopstelling met inbouwapparatuur: 5-pits gasfornuis, vaatwasser, afzuigkap, combi-oven en koelkast
- bijkeuken met wasmachine aansluiting en cv-opstelling
- toilet met fonteintje
- aangebouwde berging

1e verdieping:
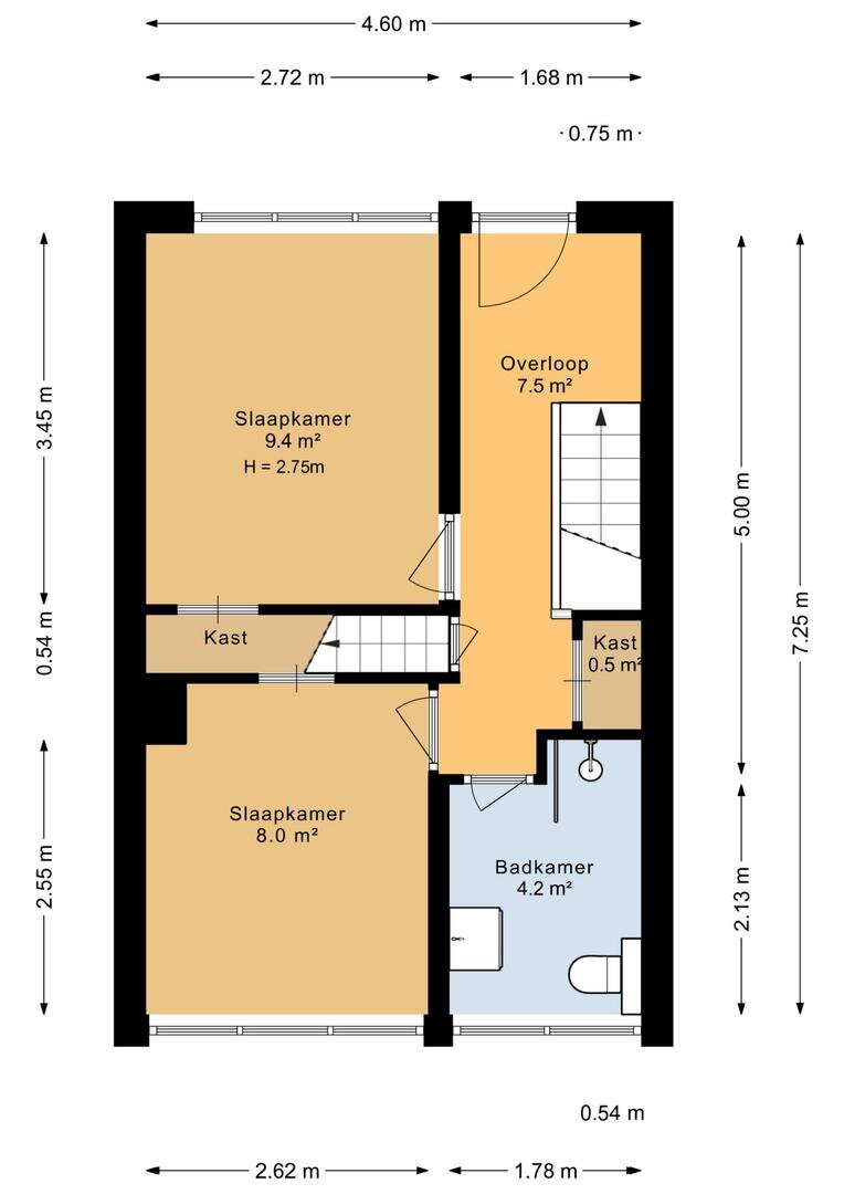
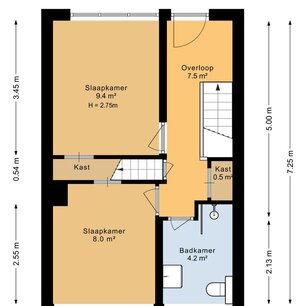
- overloop met vaste kast
- 1e slaapkamer (circa 8 m2) aan de voorzijde van de woning met vaste kast
- moderne badkamer met inloopdouche, wastafel met meubel en 2e toilet
- 2e slaapkamer (circa 9 m2) met vaste kast
- vaste trap naar 2e verdieping

2e verdieping:
Over de gehele breedte van de woning is een dakkapel gesitueerd. Hierdoor is een ruime zolderkamer ontstaan van circa 16 m2.


Algemeen:
- gebruikersoppervlakte wonen 95 m2 en inhoud 371 m3
- perceeloppervlakte van 106 m2
- energielabel C
- schuimbeton met vloerverwarming op begane grond
- gehele woning beschikt over kunststof kozijnen met HR++ beglazing
- dakisolatie
- karakterstieke jaren '30 woning
- warm water en verwarming middels Vaillant cv-ketel, uit 2017 en in eigendom
- aanvaarding in overleg


De woning is gemeten op basis van de Branche Brede Meetinstructie (BBMI). Deze meetinstructie is bedoeld om een meer eenduidige manier van meten toe te passen voor het geven van een indicatie van de gebruiksoppervlakte. De Meetinstructie sluit verschillen in meetuitkomsten niet volledig uit, door bijvoorbeeld interpretatieverschillen, afrondingen of beperkingen bij het uitvoeren van de meting.

De Vos Makelaardij B.V. staat niet in voor de juistheid van de plattegronden en aanvaardt hiervoor geen aansprakelijkheid.

Over deze woning

Locatie

Over dit object

Overdracht
Statusbeschikbaar
Prijs€ 279.000 k.k.
Bouw
Bouwjaar1933
Bouwvormbestaande bouw
Type ObjectWoonhuis
HoofdfunctieWoonruimte
Indeling
Woonoppervlakte95 m²
Perceeloppervlakte106 m²
Woning Inhoud371 m³
Kamers4 (3 slaapkamers)
Energie
EnergielabelC

Plan een bezichtiging

Vraag direct een bezichtiging aan voor deze woning. We zullen zo snel mogelijk contact met u opnemen om een afspraak te maken.

*
*
*

Lees onze voorwaarden: Cookies, Disclaimer en Privacy