Aysmastins 21

Aysmastins 21
STIENS

Vraagprijs:
€ 295.000 k.k.

Aysmastins 21, STIENS

woningtype
Woonhuis

woonoppervlakte
111 m²

Aantal kamers
5 kamers, 4 slaapkamers

Locatie
STIENS

Foto's

Omschrijving

Op zoek naar een ruime eengezinswoning met vier slaapkamers, een moderne keuken, kunststof kozijnen, zonnepanelen en een verzorgde achtertuin met schuur en achterom? Dan is Aysmastins 21 in Stiens zeker het bekijken waard.

Deze goed onderhouden woning uit 1974 heeft een gebruiksoppervlakte wonen van 111 m² en staat op een perceel van in totaal 203 m². De woning is de afgelopen jaren op meerdere punten verbeterd en verduurzaamd. Zo is in 2021 een nieuwe keuken geplaatst, is de tuin aangepakt, zijn in 2022 vrijwel alle kozijnen vervangen door kunststof exemplaren en in 2023 zijn 11 zonnepanelen geplaatst (eigendom).

Ook op isolatie is gelet! De woning beschikt over HR++ beglazing, bodemisolatie (isolatiechips), dakisolatie (steenwol aan de binnenzijde) en in oktober 2025 is de spouwmuur na-geïsoleerd. Dit resulteert in een energielabel C.

De woonkamer is licht, ruim, voorzien van een PVC-vloer én een schuifpui naar de achtertuin. De open keuken is uitgerust met een inductiekookplaat, afzuigkap, combi-oven, vaatwasser, koelkast en vriezer. Aansluitend bevindt zich de praktische bijkeuken met witgoedaansluiting en cv-opstelling.

Buiten beschikt de woning over een diepe achtertuin op het noordoosten. De tuin is verzorgd aangelegd en voorzien van een vrijstaande berging met elektra. Daarnaast is er een praktische achterom aanwezig.

Stiens

Stiens is een levendig en compleet dorp net boven Leeuwarden, waar je profiteert van rust, ruimte én alle dagelijkse voorzieningen binnen handbereik. Het dorp heeft een sterk eigen karakter met een actief verenigingsleven, diverse sportclubs, basisscholen en een uitgebreid winkelaanbod in het centrum.
De woonwijken zijn ruim opgezet en kindvriendelijk, met veel groen en speelvoorzieningen. Hierdoor is Stiens een geliefde plek voor gezinnen, maar ook voor stellen en doorstromers die comfortabel willen wonen in een rustige omgeving met goede bereikbaarheid.

Nieuwsgierig geworden? Maak gerust een afspraak en ervaar de lichte woning zelf!

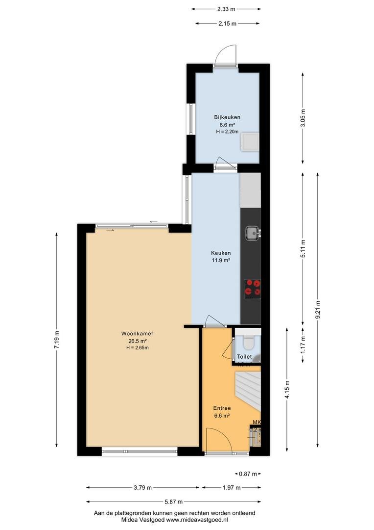
Indeling woning

Begane grond
- entree/hal
- toilet met fonteintje
- lichte woonkamer met PVC-vloer en schuifpui
- open keuken (2021) met inbouwapparatuur
- bijkeuken met witgoedaansluiting en cv-opstelling

Eerste verdieping
- overloop
- 1e slaapkamer (circa 13 m²) aan de voorzijde van de woning
- 2e slaapkamer (circa 13 m²) aan de achterzijde van de woning
- 3e slaapkamer (circa 7 m²)aan de achterzijde van de woning
- badkamer met inloopdouche en wastafelmeubel

Tweede verdieping
- overloop (7,4 m²)
- 4e slaapkamer (12,6 m²) met dakramen
- bergruimte achter knieschotten

Buiten
- ruime en verzorgde achtertuin
- vrijstaande schuur met elektra
- achterom


Algemeen
- bouwjaar: 1974
- gebruiksoppervlakte wonen: ca. 111 m²
- perceel: 203 m²
- energielabel: C (geldig tot 09-06-2031), betreft oud-label
- 11 zonnepanelen (2023, eigendom)
- kunststof kozijnen (2022, m.u.v. voordeur)
- HR++ beglazing
- spouwmuurisolatie (2025)
- dakisolatie (steenwol, binnenzijde)
- bodemisolatie aanwezig (isolatiechips)
- cv-ketel: Remeha Tzerra 28C Plus CW4 (huur)
- elektra: 10 groepen, 3 aardlekschakelaars en hoofdschakelaar
- glasvezel aanwezig
- aanvaarding: in overleg

De woning is gemeten op basis van de Branche Brede Meetinstructie (BBMI). Deze meetinstructie is bedoeld om een meer eenduidige manier van meten toe te passen voor het geven van een indicatie van de gebruiksoppervlakte. De Meetinstructie sluit verschillen in meetuitkomsten niet volledig uit, door bijvoorbeeld interpretatieverschillen, afrondingen of beperkingen bij het uitvoeren van de meting.

De Vos Makelaardij B.V. staat niet in voor de juistheid van de plattegronden en aanvaardt hiervoor geen aansprakelijkheid.

Over deze woning

Locatie

Over dit object

Overdracht
Statusonder bod
Prijs€ 295.000 k.k.
Bouw
Bouwjaar1973
Bouwvormbestaande bouw
Type ObjectWoonhuis
HoofdfunctieWoonruimte
Indeling
Woonoppervlakte111 m²
Perceeloppervlakte203 m²
Woning Inhoud416 m³
Kamers5 (4 slaapkamers)
Energie
EnergielabelC

Plan een bezichtiging

Vraag direct een bezichtiging aan voor deze woning. We zullen zo snel mogelijk contact met u opnemen om een afspraak te maken.

*
*
*

Lees onze voorwaarden: Cookies, Disclaimer en Privacy