Achterwei 15

Achterwei 15
KOLLUMERSWEACH

Vraagprijs:
€ 550.000 k.k.

Achterwei 15, KOLLUMERSWEACH

woningtype
Woonhuis

woonoppervlakte
210 m²

Aantal kamers
7 kamers, 5 slaapkamers

Locatie
KOLLUMERSWEACH

Foto's

Omschrijving

Deze ruime, onder architectuur gebouwde woning, is gelegen in het levendige woondorp Kollumersweach. Het oorspronkelijke voorhuis dateert uit circa 1926 en ademt sfeer en authenticiteit. In de jaren negentig is een royale aanbouw met opbouw onder architectuur gerealiseerd. De fraaie vormgeving wordt onder andere door een rieten dak compleet gemaakt. De woning staat op een ruim perceel van maar liefst 975 m² en beschikt over een garage met kap, een veranda en een fraai aangelegde tuin waar het heerlijk vertoeven is.

De tuingerichte woonkeuken en de eveneens tuingerichte woonkamer vormen samen het hart van de woning en bieden een fijne verbinding met buiten. In het oudere gedeelte aan de voorkant van het huis bevindt zich daarnaast een knusse woonkamer, ideaal als zit- of tv-kamer. De woning beschikt over in totaal vijf slaapkamers, waarvan één op de begane grond en vier op de verdieping, wat zorgt voor volop ruimte en flexibiliteit. Dankzij de ruimtelijke opzet en doordachte indeling is de woning uitermate geschikt voor diverse woonwensen, zoals een kantoor aan huis, gelijkvloers wonen en bewoning door mindervalide personen. Op de begane grond bestaat bovendien de mogelijkheid om een badkamer te realiseren, waardoor de woning levensloopbestendig kan worden ingericht. Ook de garage biedt extra gebruiksmogelijkheden dankzij de aanwezige multifunctionele ruimtes.

Met een gebruiksoppervlakte wonen van circa 210 m² is dit een ruim en comfortabel woonhuis boordevol potentie.

In het dorp Kollumersweach zijn goede voorzieningen aanwezig, waaronder diverse winkels, een supermarkt, een basisschool, huisarts en sportverenigingen. Het totaal aantal inwoners is circa 3100. Het treinstation bevindt zich op circa 3 kilometer afstand, met directe treinverbindingen naar Groningen en Leeuwarden.

Op korte afstand liggen ook de 11-steden dorpen Dokkum, Franeker en Harlingen, alsmede natuurgebied Het Lauwersmeer en de Waddeneilanden.

U bent van harte welkom om deze royale woning zelf te komen ervaren!

Indeling van de woning:
Begane grond:
Voorhuis:
- entree, hal met vernieuwde meterkast
- authentiek voorhuis met gashaard

Aanbouw:
- woonkeuken met open keukenopstelling, voorzien van marmeren werkblad en inbouwapparatuur: vaatwasser, inductiekookplaat, afzuigkap, koelkast en combi-oven
- ruime woonkamer (45 m²) met schuifpui naar de achtertuin
- slaapkamer beneden met vaste kast, tevens mogelijkheid tot het creëren van een badkamer
- entree, hal aan de achterzijde
- toilet
- bijkeuken met wasmachineaansluiting en cv-opstelling

1e verdieping:
- overloop
- separaat toilet
- badkamer met ligbad, douchecabine en wastafel met meubel
- 1e en 2e slaapkamer aan de achterzijde van de woning (circa 10 en 15 m²)
- 3e en 4e slaapkamer aan de voorzijde van de woning (circa 5 en 7 m²)
- vaste trap naar bergzolder over gehele kap van de aanbouw

Algemeen:
- gebruikersoppervlakte wonen 210 m² en inhoud 821 m³
- perceeloppervlakte van 975 m²
- energielabel B
- onder architectuur gebouwd
- meerdere mogelijkheden door de ruimte in de woning en garage
- gedeeltelijke spouwmuur-, dakisolatie en dubbele beglazing
- warm water en verwarming middels combiketel, 2023 (Atag eigendom)
- aanvaarding in overleg

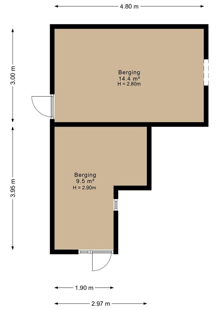
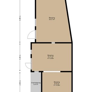
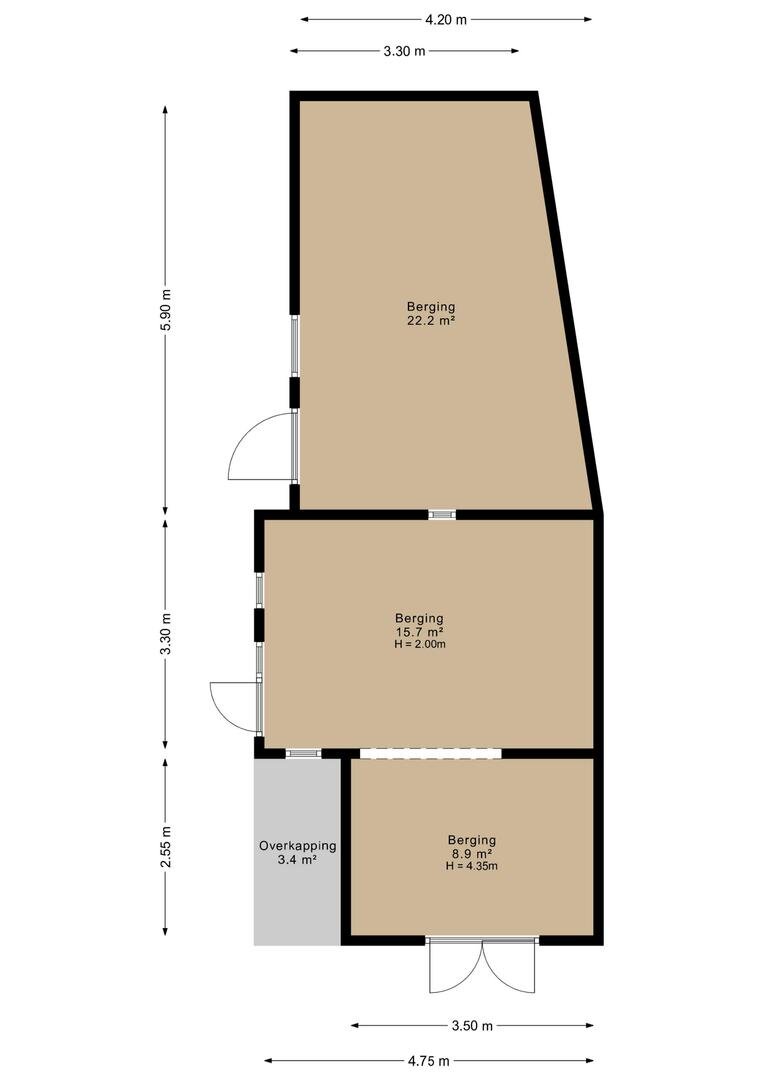
De woning is gemeten op basis van de Branche Brede Meetinstructie (BBMI). Deze meetinstructie is bedoeld om een meer eenduidige manier van meten toe te passen voor het geven van een indicatie van de gebruiksoppervlakte. De Meetinstructie sluit verschillen in meetuitkomsten niet volledig uit, door bijvoorbeeld interpretatieverschillen, afrondingen of beperkingen bij het uitvoeren van de meting.

De Vos Makelaardij B.V. staat niet in voor de juistheid van de plattegronden en aanvaardt hiervoor geen aansprakelijkheid.

Over deze woning

Locatie

Over dit object

Overdracht
Statusbeschikbaar
Prijs€ 550.000 k.k.
Bouw
Bouwjaar1926
Bouwvormbestaande bouw
Type ObjectWoonhuis
HoofdfunctieWoonruimte
Indeling
Woonoppervlakte210 m²
Perceeloppervlakte975 m²
Woning Inhoud821 m³
Kamers7 (5 slaapkamers)
Energie
EnergielabelB

Plan een bezichtiging

Vraag direct een bezichtiging aan voor deze woning. We zullen zo snel mogelijk contact met u opnemen om een afspraak te maken.

*
*
*

Lees onze voorwaarden: Cookies, Disclaimer en Privacy