van der Kooijstraat 9

van der Kooijstraat 9
LEEUWARDEN

Vraagprijs:
€ 150.000 k.k.

van der Kooijstraat 9, LEEUWARDEN

woningtype
Woonhuis

woonoppervlakte
93 m²

Aantal kamers
4 kamers, 3 slaapkamers

Locatie
LEEUWARDEN

Foto's

Omschrijving

Op loopafstand van het stadscentrum van Leeuwarden, in een rustig straatje, staat deze karakteristieke tussenwoning met drie slaapkamers. Deze woning is gebouwd in 1906 en moet gemoderniseerd worden, dus een ideale kans om de woning volledig naar eigen wens in te richten. Zie jij het zitten je handen uit de mouwen te steken om van dit huis een mooi thuis te maken? Dan is dit de kans om alles naar eigen smaak af te werken.

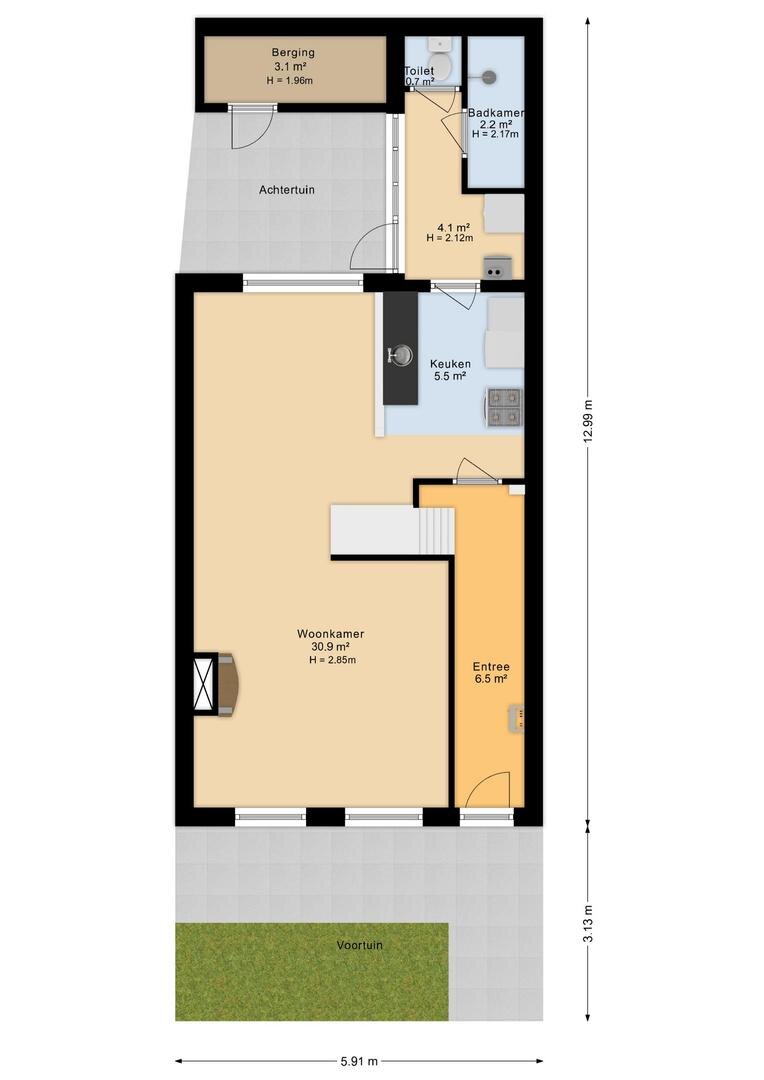
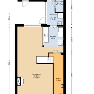
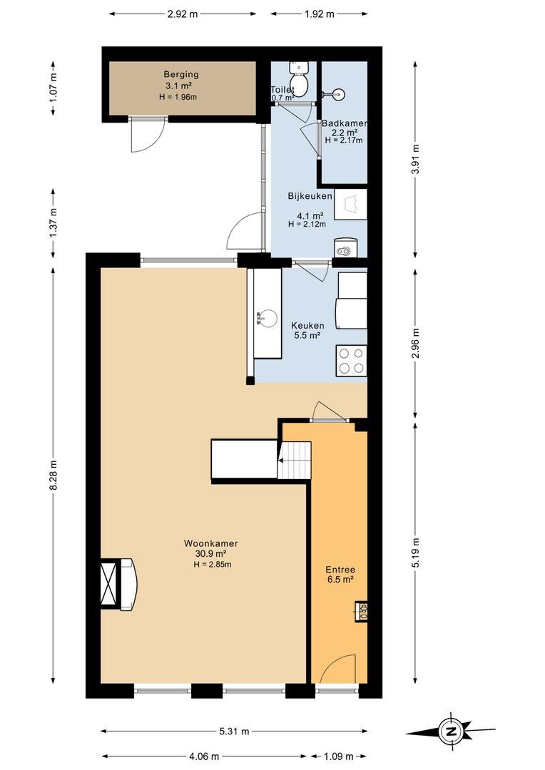
Indeling begane grond:
- entree/gang
- meterkast 3 groepen met een aardlekschakelaar
- woonkamer
- open keuken met eenvoudige keukeninrichting
- bijkeuken met toilet en douche

1e verdieping:
-overloop
-3 slaapkamers

Buiten:
- plaatsje met berging

Algemeen:
- woonoppervlakte 93 m2, inhoud 343 m3
- perceeloppervlakte 86 m2 eigen grond
- deels dubbel glas
- energielabel G geldig tot 03-11-2035
- op loopafstand van de Leeuwarder binnenstad
- gaskachelverwarming
- warm water via cv-ketel (huur)

De woning is gemeten op basis van de Branche Brede Meetinstructie (BBMI). Deze meetinstructie is bedoeld om een meer eenduidige manier van meten toe te passen voor het geven van een indicatie van de gebruiksoppervlakte.
De Meetinstructie sluit verschillen in meetuitkomsten niet volledig uit, door bijvoorbeeld interpretatieverschillen, afrondingen of beperkingen bij het uitvoeren van de meting.

De Vos Makelaardij staat niet in voor de juistheid van de plattegronden en aanvaardt hiervoor geen aansprakelijkheid.

Over deze woning

Locatie

Over dit object

Overdracht
Statusverkocht
Prijs€ 150.000 k.k.
Bouw
Bouwjaar1906
Bouwvormbestaande bouw
Type ObjectWoonhuis
HoofdfunctieWoonruimte
Indeling
Woonoppervlakte93 m²
Perceeloppervlakte86 m²
Woning Inhoud343 m³
Kamers4 (3 slaapkamers)
Energie
EnergielabelG

Helaas

Dit object is niet meer beschikbaar

Bekijk ons gehele aanbod of voor meer informatie kunt u contact met ons opnemen.
Bel ons op 058 203 70 72 voor direct contact.

Contact opnemen