Spoorstraat 78

Spoorstraat 78
LEEUWARDEN

Vraagprijs:
€ 275.000 k.k.

Spoorstraat 78, LEEUWARDEN

woningtype
Woonhuis

woonoppervlakte
123 m²

Aantal kamers
5 kamers, 4 slaapkamers

Locatie
LEEUWARDEN

Foto's

Omschrijving

Op loopafstand van het stadscentrum van Leeuwarden staat deze karakteristieke en ruime (123 m2!) hoekwoning aan de brede historische Spoorstraat. In de loop van de jaren is de woning goed onderhouden en voorzien van de nodige isolatiemaatregelen: dak- en vloerisolatie en grotendeels HR++ beglazing. Verder beschikt de woning over maar liefst 4 slaapkamers, perceel van 158 m2 en een fraaie woonkamer heeft een dubbele erker met orginele glas- en-lood ramen.

Van harte welkom om deze sfeervolle woning te komen bekijken!

Indeling van de woning:

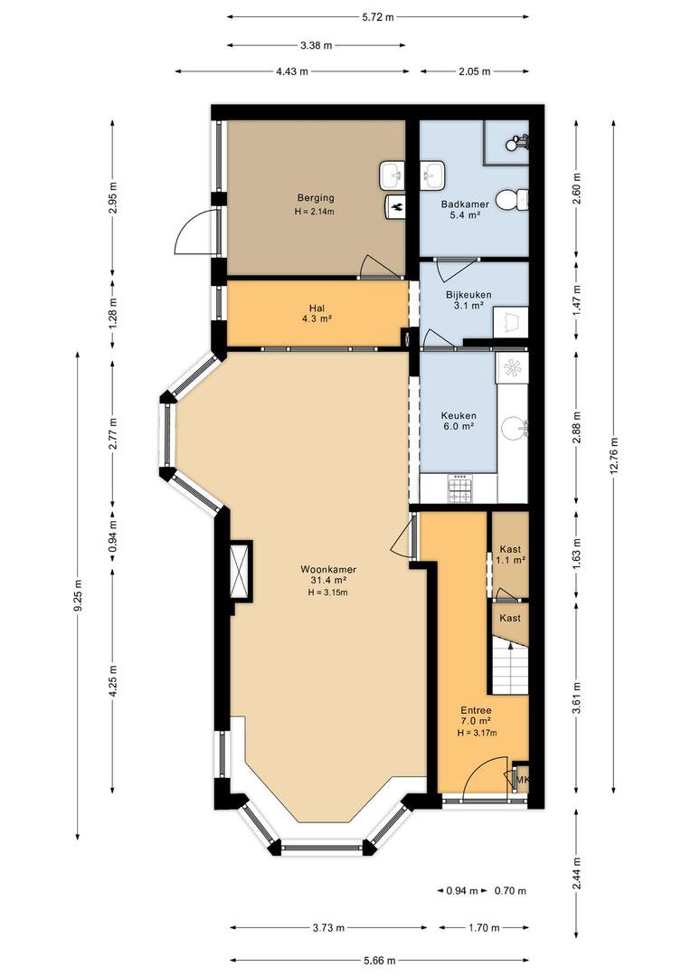
Begane grond:
- klassieke entree met fraaie trapopgang en trapkast
- lichte woonkamer met dubbele erker met fraaie glas-in-lood ramen en hoog plafond (circa 31 m2)
- kleurrijke open keuken met inbouwapparatuur: 4-pits gasfornuis, oven, vaatwasser, koelvriescombinatie (los) en afzuigkap
- tussenhal
- bijkeuken met wasmachine aansluiting
- badkamer v.v. douchecabine, toilet en wastafel. Badkamer dient vervangen te worden
- aangebouwde berging met cv-opstelling

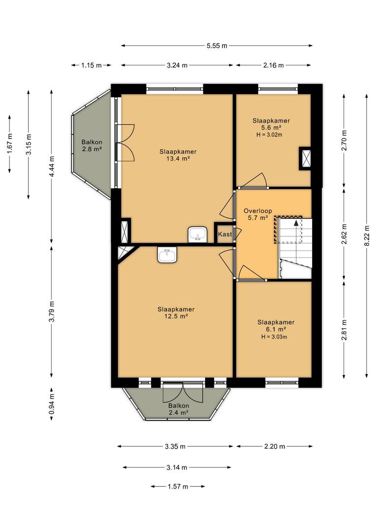
1e verdieping:
- overloop met vaste kast
- 1e en 2e slaapkamer aan de voorzijde (circa 6 en 13 m2) De grootste slaapkamer is voorzien van wastafel en fraai balkon
- 3e slaapkamer met balkon en wastafel (circa 13 m2)
- 4e slaapkamer aan de achterzijde van de woning (circa 6 m2)

Algemeen:
- gebruiksoppervlakte wonen 123 m2 en inhoud 485 m3 
- perceeloppervlakte 158 m2
- hoekwoning met maar liefst 4 slaapkamers!
- karakteristieke elementen zoals hoogplafond op begane grond, glas-in-lood ramen en meerdere erkers
- woning volledig voorzien van dubbele beglazing (grotendeels HR++), vloerisolatie en dakisolatie
- verwarming en warm water middels een combiketel (Vaillant) van 2016 (huur)
- aanvaarding in overleg



De woning is gemeten op basis van de Branche Brede Meetinstructie (BBMI). Deze meetinstructie is bedoeld om een meer eenduidige manier van meten toe te passen voor het geven van een indicatie van de gebruiksoppervlakte. De Meetinstructie sluit verschillen in meetuitkomsten niet volledig uit, door bijvoorbeeld interpretatieverschillen, afrondingen of beperkingen bij het uitvoeren van de meting.

De Vos Makelaardij B.V. staat niet in voor de juistheid van de plattegronden en aanvaardt hiervoor geen aansprakelijkheid.

Over deze woning

Locatie

Over dit object

Overdracht
Statusverkocht
Prijs€ 275.000 k.k.
Bouw
Bouwjaar1910
Bouwvormbestaande bouw
Type ObjectWoonhuis
HoofdfunctieWoonruimte
Indeling
Woonoppervlakte123 m²
Perceeloppervlakte158 m²
Woning Inhoud485 m³
Kamers5 (4 slaapkamers)
Energie
EnergielabelE

Helaas

Dit object is niet meer beschikbaar

Bekijk ons gehele aanbod of voor meer informatie kunt u contact met ons opnemen.
Bel ons op 058 203 70 72 voor direct contact.

Contact opnemen