Paulus Potterstraat 58

Paulus Potterstraat 58
LEEUWARDEN

Vraagprijs:
€ 275.000 k.k.

Paulus Potterstraat 58, LEEUWARDEN

woningtype
Woonhuis

woonoppervlakte
80 m²

Aantal kamers
4 kamers, 3 slaapkamers

Locatie
LEEUWARDEN

Foto's

Omschrijving

Vrijstaand wonen in Huizum! Deze instapklare woning uit de jaren '30 met 3 slaapkamers is in de loop van de jaren gerenoveerd en voorzien moderne keuken, badkamer en fraai afwerkniveau. Ook in de woning zitten meerdere authentieke elementen (zoals o.a. glas-in-loodramen). Daarnaast beschikt de woning over 6 zonnepanelen, grotendeels HR++ beglazing, (gedeeltelijk) muurisolatie en kunststof kozijnen op 1e verdieping. Dit resulteert in een energielabel D.

Huizum
De sfeervolle Paulus Potterstraat is gelegen in de wijk Huizum. Deze populaire wijk biedt charmante jaren '30 woningen, groene straten en alle voorzieningen zoals winkels (De Schrans), scholen en parken zelfs op loopafstand dichtbij. Met het stadscentrum en uitvalswegen om de hoek is Huizum ideaal voor jong en oud!

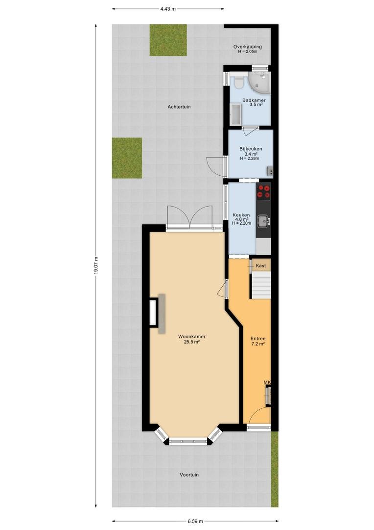
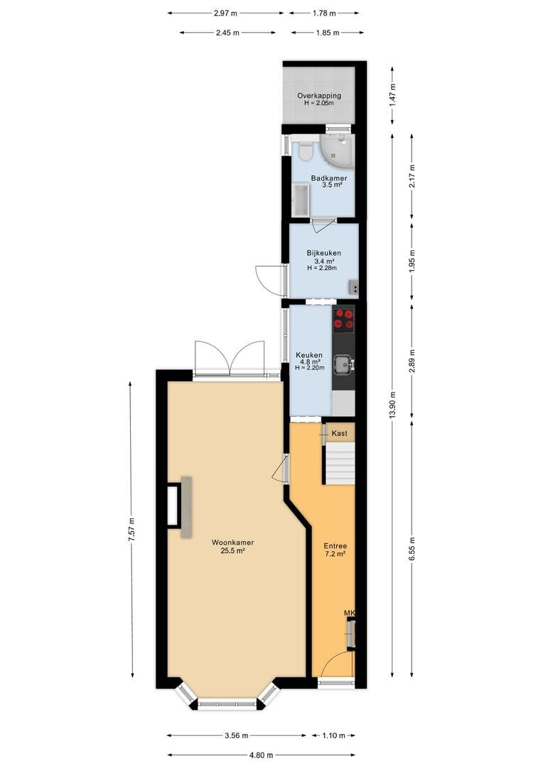
Indeling van de woning:

Begane grond:
- entree, hal met trapopgang
- meterkast
- trapkast
- sfeervolle woonkamer met erker inclusief glas-in-loodramen en openslaande deuren naar de achtertuin
- moderne keuken met inbouwapparatuur: inductiekookplaat, combi-oven, vaatwasser en afzuigkap
- bijkeuken met cv-opstelling
- moderne badkamer met douchecabine, toilet en wastafel met meubel
- aangebouwde overkapping

1e verdieping:
- overloop
- 1e en 2e slaapkamer aan de voorzijde van de woning (circa 6 en 8 m2)
- 3e slaapkamer aan de achterzijde van de woning (circa 7 m2)
- vaste trap naar de bergzolder

Algemeen:
- gebruiksoppervlakte wonen circa 80 m2 en inhoud van 333 m3
- perceeloppervlakte 118 m2 (eigen grond)
- energielabel D
- 6 zonnepanelen van toepassing
- op 1e verdieping kunststof kozijnen
- instapklaar
- centraal verwarmd met cv-ketel (Intergas uit 2020) in eigendom
- aanvaarding kan op korte termijn




De woning is gemeten op basis van de Branche Brede Meetinstructie (BBMI). Deze meetinstructie is bedoeld om een meer eenduidige manier van meten toe te passen voor het geven van een indicatie van de gebruiksoppervlakte. De Meetinstructie sluit verschillen in meetuitkomsten niet volledig uit, door bijvoorbeeld interpretatieverschillen, afrondingen of beperkingen bij het uitvoeren van de meting.

De Vos Makelaardij B.V. staat niet in voor de juistheid van de plattegronden en aanvaardt hiervoor geen aansprakelijkheid.

Over deze woning

Locatie

Over dit object

Overdracht
Statusverkocht
Prijs€ 275.000 k.k.
Bouw
Bouwjaar1931
Bouwvormbestaande bouw
Type ObjectWoonhuis
HoofdfunctieWoonruimte
Indeling
Woonoppervlakte80 m²
Perceeloppervlakte118 m²
Woning Inhoud333 m³
Kamers4 (3 slaapkamers)
Energie
EnergielabelD

Helaas

Dit object is niet meer beschikbaar

Bekijk ons gehele aanbod of voor meer informatie kunt u contact met ons opnemen.
Bel ons op 058 203 70 72 voor direct contact.

Contact opnemen