Oranje-Nassaustraat 11

Oranje-Nassaustraat 11
LEEUWARDEN

Vraagprijs:
€ 375.000 k.k.

Oranje-Nassaustraat 11, LEEUWARDEN

woningtype
Woonhuis

woonoppervlakte
140 m²

Aantal kamers
6 kamers, 4 slaapkamers

Locatie
LEEUWARDEN

Foto's

Omschrijving

Karakteristieke eengezinswoning met 4 slaapkamers in de populaire Oranjewijk! Van harte welkom om deze fraaie woning te komen bekijken! De woning is gelegen in de voor-oorlogse woonwijk Oranjewijk. De gehele wijk is aangemerkt als beschermd stadsgezicht, dit heeft natuurlijk alles te maken met de sfeervolle en karakteristieke woningen, zoals deze. In de woning wordt vooral de hoeveelheid licht in de woning zichtbaar. Zowel aan de voor als achterzijde zijn grote raampartijen (HR++) die veel lichtinval doorlaten. Daarbij beschikt de woning over een open keuken met inbouwapparatuur, karakteristieke oude verwarmings elementen, 10 zonnepanelen, bodemisolatie en een energielabel C.

Omgeving
De locatie van deze woning is uitstekend te noemen. De woning ligt nabij het Nieuwe Kanaal waar authentieke woonschepen zijn gelegen. U bevindt zich midden in het kloppende hart van de stad, waardoor het centrum van Leeuwarden binnen 10 minuten lopen bereikbaar is. Hierdoor is er een overvloed aan winkels, gezellige restaurants en culturele hoogtepunten binnen handbereik. Het treinstation en de bushalte liggen op nog geen 5 minuten fietsen, wat zorgt voor een uitstekende bereikbaarheid.

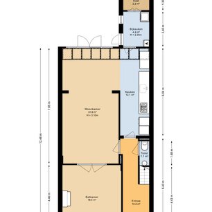
Indeling van de woning:

Begane grond:
- entree met trapopgang en meterkast
- toilet met fonteintje
- open keuken met diverse inbouwapparatuur; afzuigkap, oven, koelkast, vrieskast en vaatwasser (defect)
- bijkeuken wasmachineaansluiting en vaste kast
- ruime achterkamer met hoog plafond (circa 3,1m) en fraaie raampartij aan de achterzijde. Daarbij openslaande deuren naar de achtertuin
- en-suite deuren
- voorkamer, welke thans als eetkamer wordt gebruikt, is voorzien van gashaard


Eerste verdieping:
- overloop
- vaste kast met cv-opstelling
- eerste slaapkamer aan voorzijde van de woning (circa 13m2) met vaste kast
- tweede slaapkamer aan voorzijde van de woning (circa 6m2)
- moderne badkamer met fraai ligbad, 2e toilet, wastafel met meubel en douche
- derde en vierde slaapkamer aan achterzijde van de woning (circa 6 en 12 m2)

Algemeen:
- gebruiksoppervlakte woonruimte 140 m2 en inhoud 539 m3
- perceeloppervlakte 152 m2
- bouwperiode 1906
- warm water en verwarming middels cv-ketel van Intergas uit 2024 (huur, 35 euro per maand)
- verwarmen en koelen doormiddel van airco van toepassing
- energielabel C
- dakisolatie van toepassing (geplaatst in 2021, samen met nieuwe dakbedekking)
- Drowa chips als bodemisolatie
- 10 zonnepanelen (geplaatst in 2023)
- aanvaarding in overleg

De woning is gemeten op basis van de Branche Brede Meetinstructie (BBMI). Deze meetinstructie is bedoeld om een meer eenduidige manier van meten toe te passen voor het geven van een indicatie van de gebruiksoppervlakte.
De Meetinstructie sluit verschillen in meetuitkomsten niet volledig uit, door bijvoorbeeld interpretatieverschillen, afrondingen of beperkingen bij het uitvoeren van de meting.

De Vos Makelaardij staat niet in voor de juistheid van de plattegronden en aanvaardt hiervoor geen aansprakelijkheid.

Over deze woning

Locatie

Over dit object

Overdracht
Statusverkocht
Prijs€ 375.000 k.k.
Bouw
Bouwjaar1906
Bouwvormbestaande bouw
Type ObjectWoonhuis
HoofdfunctieWoonruimte
Indeling
Woonoppervlakte140 m²
Perceeloppervlakte152 m²
Woning Inhoud539 m³
Kamers6 (4 slaapkamers)
Energie
EnergielabelC

Helaas

Dit object is niet meer beschikbaar

Bekijk ons gehele aanbod of voor meer informatie kunt u contact met ons opnemen.
Bel ons op 058 203 70 72 voor direct contact.

Contact opnemen