Molenhoek 47

Molenhoek 47
KOLLUM

Vraagprijs:
€ 585.000 k.k.

Molenhoek 47, KOLLUM

woningtype
Woonhuis

woonoppervlakte
142 m²

Aantal kamers
4 kamers, 3 slaapkamers

Locatie
KOLLUM

Foto's

Omschrijving

Op een uiterst fraaie woonlocatie, aan de rand van het watersportdorp Kollum, is deze goed onderhouden vrijstaande woning gelegen. De locatie biedt vrij uitzicht over vaarwater en landerijen, een prettige woonomgeving! Eind jaren '90 is de woning op traditionele wijze gebouwd en in de loop van de jaren gemoderniseerd. De woning beschikt o.a. over vloerverwarming, modere keukenopstelling, woonkamer met veel lichtinval, 12 zonnepanelen en de gehele woning beschikt over HR++ beglazing. Dit resulteert dan ook in een energielabel A.

Het dorp Kollum, met bijna 6000 inwoners, is een regiokern en biedt alle voorzieningen op het gebied van winkels, onderwijs, verenigingen etc. De sneltrein-spoorverbinding Leeuwarden-Groningen ligt op 10 minuten en steden als Groningen, Leeuwarden en Dokkum bereik je in een half uurtje. Daardoor is Kollum ook als forensendorp zeer aantrekkelijk.

Van harte welkom om deze leuke woning te komen bezichtigen!

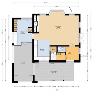
Indeling van de woning:

Begane grond:
- overdekte entree door fraaie overkapping
- hal met meterkast en trapopgang
- modern toilet met fonteintje
- ruime woonkamer voorzien van erker, vele raampartijen, gashaard en openslaande deuren naar de tuin
- moderne open keuken (vernieuwd in 2019) met natuurstenen werkblad en diverse inbouwapparatuur
- ruime bijkeuken met inbouwkasten en cv-ketel
- inpandige garage, voorzien van sectional deur en verwarming

Eerste 1e verdieping:
- overloop
- 1e en 2e slaapkamer aan voorzijde van de woning (circa 11 en 13 m2)
- badkamer met ligbad, douche, toilet en dubbele wastafel
- ruime 3e slaapkamer met erker aan achterzijde van de woning (21m2)
- balkon op het zuiden bereikbaar vanaf tweede en derde slaapkamer
- bergzolder

Tuin:
De woning beschikt over een fraaie tuin rondom. De achtertuin is voorzien van meerdere terrassen en afsluitbare overkapping.

Algemeen:
- gebruiksoppervlakte wonen 142 m2 exclusief inpandige garage 23 m2 en inhoud 585 m3
- perceel 537 m2 eigen grond
- bouwjaar 1999
- energielabel A
- volledig geïsoleerd
- oprit met ruimte voor meerdere auto's
- 12 zonnepanelen van toepassing (400 WP per stuk)
- kunststof dakgoten
- gehele woning beschikt over HR++ beglazing
- centraal verwarmd middels cv-ketel (Remeha Avanta uit 2022, eigendom)
- airco op 1e verdieping
- zonnescherm is elektrisch
- overdracht in overleg



De woning is gemeten op basis van de Branche Brede Meetinstructie (BBMI). Deze meetinstructie is bedoeld om een meer eenduidige manier van meten toe te passen voor het geven van een indicatie van de gebruiksoppervlakte.
De Meetinstructie sluit verschillen in meetuitkomsten niet volledig uit, door bijvoorbeeld interpretatieverschillen, afrondingen of beperkingen bij het uitvoeren van de meting.

De Vos Makelaardij staat niet in voor de juistheid van de plattegronden en aanvaardt hiervoor geen aansprakelijkheid.

Over deze woning

Locatie

Over dit object

Overdracht
Statusverkocht
Prijs€ 585.000 k.k.
Bouw
Bouwjaar1999
Bouwvormbestaande bouw
Type ObjectWoonhuis
HoofdfunctieWoonruimte
Indeling
Woonoppervlakte142 m²
Perceeloppervlakte537 m²
Woning Inhoud585 m³
Kamers4 (3 slaapkamers)
Energie
EnergielabelA

Helaas

Dit object is niet meer beschikbaar

Bekijk ons gehele aanbod of voor meer informatie kunt u contact met ons opnemen.
Bel ons op 058 203 70 72 voor direct contact.

Contact opnemen