Keizerskroon 34

Keizerskroon 34
LEEUWARDEN

Vraagprijs:
€ 295.000 k.k.

Keizerskroon 34, LEEUWARDEN

woningtype
Woonhuis

woonoppervlakte
116 m²

Aantal kamers
5 kamers, 4 slaapkamers

Locatie
LEEUWARDEN

Foto's

Omschrijving

Ruim opgezette en moderne eengezinswoning met fraaie achtertuin op het zuidoosten. Deze woning (type pakhuismodel) is gelegen in de gewilde woonwijk Aldlân. De keuken is in 2024 gerenoveerd (nieuwe frontjes, bovenkasten en diverse inbouwapparatuur vervangen), de badkamer is in 2022 vernieuwd en de begane grondvloer is 2023 geïsoleerd. Verder beschikt de woning over 8 zonnepanelen (425 Wp per paneel). Het energielabel C is van voor de aangebrachte verbeteringen zoals vloerisolatie, zonnepanelen en inductiekookplaat. Een aantal jaren geleden zijn de kozijnen vervangen door hardhouten kozijnen met HR++ beglazing.

De wijk Aldlân staat bekend als een groene, rustige en kindvriendelijke wijk. De wijk is gelegen ten oosten van Leeuwarden en heeft veel basisvoorzieningen zoals een wijkcentrum met o.a. supermarkten, een huisartsenpraktijk, een basisschool, etc. Op enkele minuten zijn de uitvalswegen richting Drachten, Groningen of Harlingen te bereiken. Liever naar het centrum? Met een kleine 15 minuten fietsen sta je midden in de bruisende binnenstad!

Van harte welkom om deze leuke woning te komen bekijken!

Begane grond:
-entree
-ruime aangebouwde hal
-nieuwe meterkast met 7 groepen en 2 aardlekschakelaars
-toilet met fonteintje
-in 2024 gerenoveerde woonkeuken (circa 14 m2) van een inductiekookplaat met geïntegreerde afzuiging, vaatwasser, combimagnetron-oven en koelkast
-woonkamer (circa 28m2) met open trap naar eerste verdieping en toegang tot de zonnige achtertuin

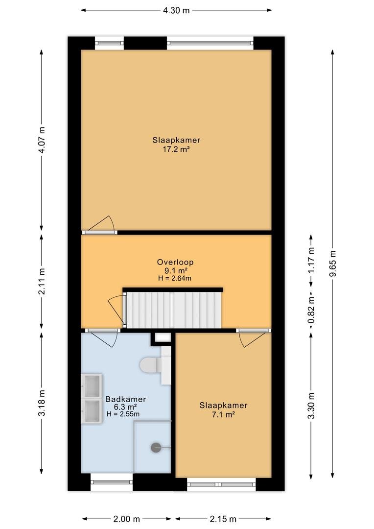
Eerste verdieping:
-ruime overloop met trapopgang naar tweede verdieping
-slaapkamer 1 (circa 17 m2) aan de tuinzijde
-moderne badkamer met inloopdouche, toilet, wastafelmeubel en spiegel met verwarming en verlichting
-slaapkamer 2 (circa 7 m2) aan de straatzijde

Tweede verdieping:
-overloop
-berging met cv-opstelling
-slaapkamer 3 aan tuinzijde (circa 12 m2)
-slaapkamer 4 aan straatzijde (circa 9 m2)

Extern:
-stenen berging met elektra
-achtertuin op het zuidoosten met achterom

Algemeen:
-gebruiksoppervlakte wonen 116 m2 en inhoud 447 m3
-perceeloppervlakte 126 m2
-energielabel C geldig tot 8 september 2030
-vloer-, muur- en dakisolatie
-8 zonnepanelen geplaatst in 2023
-verwarming en warm water middels cv-ketel (Remeha Avanta, 2021, eigendom)
-aanvaarding in overleg (1e helft januari 2026)


De woning is gemeten op basis van de Branche Brede Meetinstructie (BBMI). Deze meetinstructie is bedoeld om een meer eenduidige manier van meten toe te passen voor het geven van een indicatie van de gebruiksoppervlakte. De Meetinstructie sluit verschillen in meetuitkomsten niet volledig uit, door bijvoorbeeld interpretatieverschillen, afrondingen of beperkingen bij het uitvoeren van de meting.

De Vos Makelaardij B.V. staat niet in voor de juistheid van de plattegronden en aanvaardt hiervoor geen aansprakelijkheid.

Over deze woning

Locatie

Over dit object

Overdracht
Statusverkocht onder voorbehoud
Prijs€ 295.000 k.k.
Bouw
Bouwjaar1975
Bouwvormbestaande bouw
Type ObjectWoonhuis
HoofdfunctieWoonruimte
Indeling
Woonoppervlakte116 m²
Perceeloppervlakte126 m²
Woning Inhoud447 m³
Kamers5 (4 slaapkamers)
Energie
EnergielabelC

Helaas

Dit object is niet meer beschikbaar

Bekijk ons gehele aanbod of voor meer informatie kunt u contact met ons opnemen.
Bel ons op 058 203 70 72 voor direct contact.

Contact opnemen