Kalmoes 2

Kalmoes 2
LEEUWARDEN

Vraagprijs:
€ 275.000 k.k.

Kalmoes 2, LEEUWARDEN

woningtype
Woonhuis

woonoppervlakte
76 m²

Aantal kamers
3 kamers, 2 slaapkamers

Locatie
LEEUWARDEN

Foto's

Omschrijving

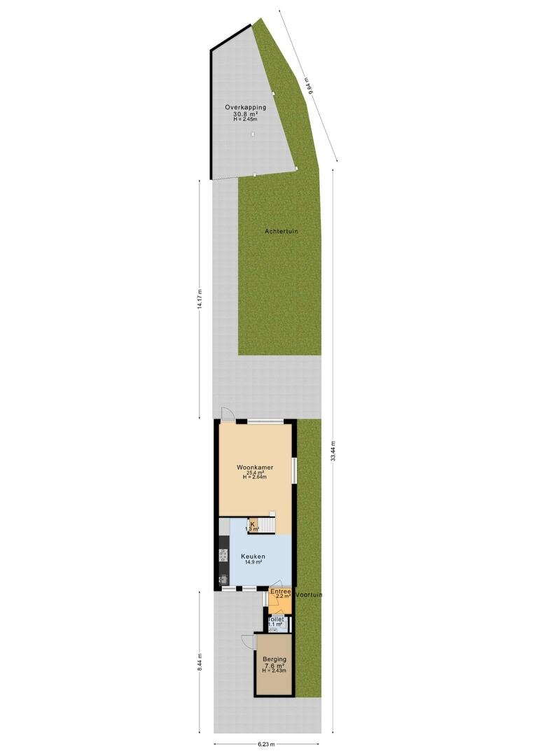
Instapklare twee-onder-één-kapwoning in fijne woonwijk Aldlân! De woning is gelegen in een rustig deel van de wijk Aldlân, nabij het Van Harinxmakanaal en diverse voorzieningen als winkels en scholen. Deze onderhoudsvriendelijke woning (geheel in kunststof kozijnen uitgevoerd), is oprecht instapklaar te noemen. Naast een moderne keuken, badkamer en toilet, beschikt de woning ook over een heerlijke diepe (bijna 20 m diep) achtertuin met overkapping.

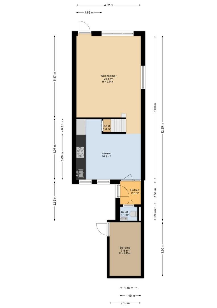
Indeling van de woning:

Begane grond:
- zij-entree
- modern toilet met fonteintje
- aangebouwde berging met wasmachineaansluiting en waterontharder
- woonkeuken met moderne keukenopstelling, voorzien van vaatwasser, 5-pits gasfornuis, koel- en vrieskast en afzuigkap
- trapopgang
- lichte woonkamer (v.v. airco) met loopdeur naar de zonnige achtertuin op het westen
- de achtertuin, gelegen op het westen, is voorzien van een overkapping

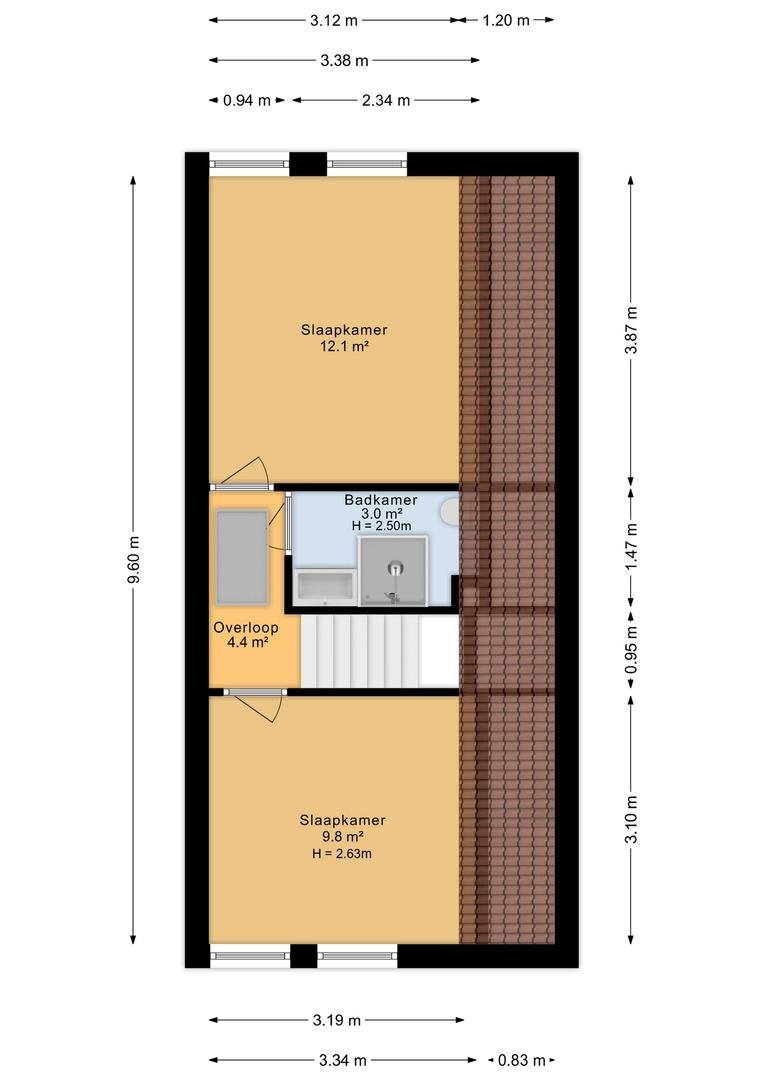
1e verdieping:
- overloop
- 1e slaapkamer (circa 10 m2) aan voorzijde van de woning
- moderne badkamer, voorzien van 2e toilet, inloopdouche en wastafel met meubel
- 2e slaapkamer aan de achterzijde van de woning (circa 12 m2)
- vlizotrap naar 2e verdieping

2e verdieping:
- thans in gebruik als berging met cv-opstelling, mogelijk om (slaap)kamer van te maken

Algemeen
- gebruiksoppervlakte wonen 76 m2 (exclusief 2de verdieping) en inhoud 367 m3
- perceel: 234 m2
- gehele woning is voorzien van kunststof kozijnen met HR++ beglazing
- energielabel C (oud label)
- sauna is ter overname
- achterzijde van de woning is recent gevoegd en geïmpregneerd
- dakbedekking van woning is van 2024
- warm water en verwarming middels cv-ketel (Remeha Avanta, 2010 eigendom)
- waterontharder blijft achter
- aanvaarding in overleg


De woning is gemeten op basis van de Branche Brede Meetinstructie (BBMI). Deze meetinstructie is bedoeld om een meer eenduidige manier van meten toe te passen voor het geven van een indicatie van de gebruiksoppervlakte. De Meetinstructie sluit verschillen in meetuitkomsten niet volledig uit, door bijvoorbeeld interpretatieverschillen, afrondingen of beperkingen bij het uitvoeren van de meting.

De Vos Makelaardij B.V. staat niet in voor de juistheid van de plattegronden en aanvaardt hiervoor geen aansprakelijkheid.

Over deze woning

Locatie

Over dit object

Overdracht
Statusverkocht
Prijs€ 275.000 k.k.
Bouw
Bouwjaar1975
Bouwvormbestaande bouw
Type ObjectWoonhuis
HoofdfunctieWoonruimte
Indeling
Woonoppervlakte76 m²
Perceeloppervlakte234 m²
Woning Inhoud367 m³
Kamers3 (2 slaapkamers)
Energie
EnergielabelC

Helaas

Dit object is niet meer beschikbaar

Bekijk ons gehele aanbod of voor meer informatie kunt u contact met ons opnemen.
Bel ons op 058 203 70 72 voor direct contact.

Contact opnemen