Het Zool 24

Het Zool 24
LEEUWARDEN

Vraagprijs:
€ 459.000 k.k.

Het Zool 24, LEEUWARDEN

woningtype
Woonhuis

woonoppervlakte
122 m²

Aantal kamers
5 kamers, 4 slaapkamers

Locatie
LEEUWARDEN

Foto's

Omschrijving

In de kindvriendelijke woonwijk Zuiderburen is deze fraaie twee-onder-één-kapwoning gelegen. De goed onderhouden eengezinswoning met 4 slaapkamers is in 2000 gebouwd. De woning beschikt over o.a. een aangebouwde garage, bijkeuken, moderne keuken en badkamer, 9 zonnepanelen en energielabel A. Oprecht een instapklare woning!

Zuiderburen is een relatief jonge en waterrijke wijk. Het is zeer goed te bereiken middels openbaar vervoer maar ook door de locatie langs de ring van Leeuwarden. Het stadscentrum is op circa 20 minuten fietsafstand. Er is een winkelcentrum aanwezig aan het begin van de wijk, alsmede een verzamelgebouw voor zorginstellingen (apotheek, huisarts).

Indeling van de woning:

Begane grond:
- zijentree met hal en meterkast
- trapopgang
- toilet met fonteintje
- L-vormige woonkamer (36 m2) met erker aan de voorzijde en openslaande deuren naar de achtertuin. De woonkamer is voorzien van fraaie PVC-vloer en pelletkachel
- moderne keuken (2021) met koelkast, inductiekookplaat, vaatwasser en afzuigkap
- bijkeuken met wasmachineaansluiting
- aangebouwde garage

1e verdieping:
- overloop
- 1e slaapkamer aan voorzijde van de woning (circa 15 m2)
- moderne badkamer, voorzien van inloopdouche, wastafel met dubbele kraan en 2e toilet
- 2e en 3e slaapkamer (circa 9 en 10 m2)
- vaste trap naar 2e verdieping

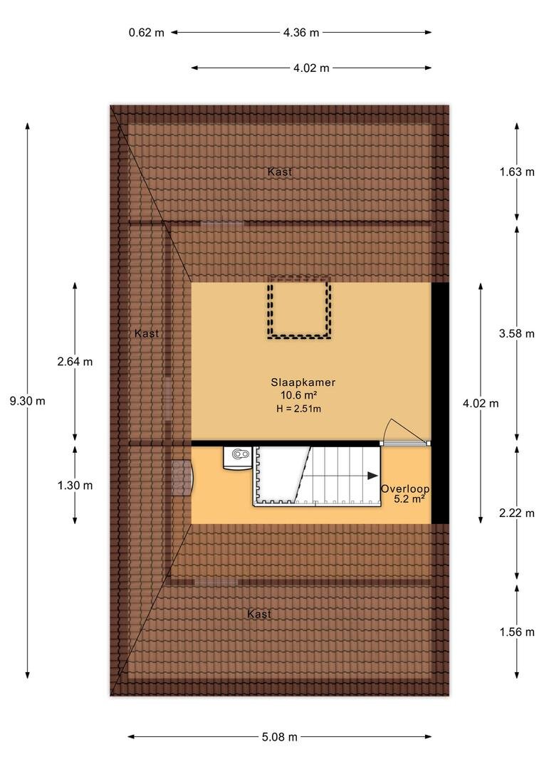
2e verdieping:
- overloop met cv-opstelling
- 4e slaapkamer (11 m2)

Algemeen:
Algemeen:
- gebruiksoppervlakte wonen 122 m2 (exclusief garage) en inhoud 471 m3
- perceel 298 m2
- bouwjaar 2000
- energielabel A
- volledig geïsoleerd
- oprit met ruimte voor meerdere auto's
- 9 zonnepanelen van toepassing
- hard houten kozijnen met HR++ beglazing
- waterontharder
- centraal verwarmd middels Intergas cv-ketel uit 2019 (eigendom)
- aanvaarding in overleg



De woning is gemeten op basis van de Branche Brede Meetinstructie (BBMI). Deze meetinstructie is bedoeld om een meer eenduidige manier van meten toe te passen voor het geven van een indicatie van de gebruiksoppervlakte. De Meetinstructie sluit verschillen in meetuitkomsten niet volledig uit, door bijvoorbeeld interpretatieverschillen, afrondingen of beperkingen bij het uitvoeren van de meting.

De Vos Makelaardij B.V. staat niet in voor de juistheid van de plattegronden en aanvaardt hiervoor geen aansprakelijkheid

Over deze woning

Locatie

Over dit object

Overdracht
Statusverkocht
Prijs€ 459.000 k.k.
Bouw
Bouwjaar2000
Bouwvormbestaande bouw
Type ObjectWoonhuis
HoofdfunctieWoonruimte
Indeling
Woonoppervlakte122 m²
Perceeloppervlakte298 m²
Woning Inhoud471 m³
Kamers5 (4 slaapkamers)
Energie
EnergielabelA

Helaas

Dit object is niet meer beschikbaar

Bekijk ons gehele aanbod of voor meer informatie kunt u contact met ons opnemen.
Bel ons op 058 203 70 72 voor direct contact.

Contact opnemen