Groningerstraatweg 191

Groningerstraatweg 191
LEEUWARDEN

Vraagprijs:
€ 335.000 k.k.

Groningerstraatweg 191, LEEUWARDEN

woningtype
Woonhuis

woonoppervlakte
102 m²

Aantal kamers
5 kamers, 4 slaapkamers

Locatie
LEEUWARDEN

Foto's

Omschrijving

Verassend ruime en modern ingerichte twee-onder-één-kapwoning! Deze woning is o.a. voorzien van een lichte woonkamer met open haard en erker, open keuken, vier slaapkamers (waarvan één met ligbad), moderne badkamer en een beschutte achtertuin met overkapping. Het geheel staat op een perceel van 156 m2 eigen grond. Het energielabel is C. U bent van harte welkom voor een bezichtiging.

De Groningerstraatweg is gelegen aan de oostzijde van Leeuwarden. De binnenstad ligt op nog geen 5 minuten fiets- en loopafstand en tevens de Prinsentuin, het Cambuurplein en winkelpark 'De Centrale' zijn allen op fiets- en loopafstand. Ook met de auto is de woning goed bereikbaar. Parkeren kan in de straat (met vergunning). Uitvalswegen zijn nabij.

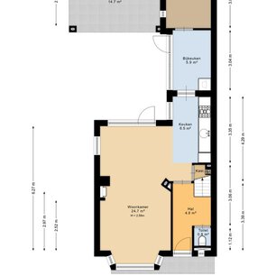
Indeling van de woning:

Begane grond:
- entree, hal, toiletruimte, trapopgang naar eerste verdieping
- kelderkast met meterkast (8 groepen, 2 aardlekschakelaar)
- woonkamer met erker aan de voorzijde, open haard en toegang tot de achtertuin (circa 25 m2)
- open keuken met met koelkast, oven, 5-pits gasfornuis en afzuigkap (circa 6 m2)
- bijkeuken met wasmachineaansluiting
- berging

Eerste verdieping:
- ruime overloop met trapopgang naar tweede verdieping
- slaapkamer 1 aan achterzijde met bad en toegang tot balkon (circa 13 m2)
- badkamer met dubbele wastafel in meubel, inloopdouche en tweede toilet (circa 7 m2)
- slaapkamer 2 aan voorzijde (circa 10 m2)

Tweede verdieping:
- overloop met vaste kast voor cv-opstelling (Remeha 2015)
- slaapkamer 3 met wastafel (circa 6 m2)
- slaapkamer 4 (circa 10 m2) met zolderberging

Tuin:
- beschutte en onderhoudsvriendelijke achtertuin met overkapping
- ligging op het het noordwesten
- de achtertuin is goed bereikbaar via de zijkant van de woning

Algemeen:
- gebruiksoppervlakte wonen 102 m2 en inhoud 398 m3
- perceeloppervlakte 156 m2 eigen grond
- verwarming en warm water middels een combiketel uit 2015 (Remeha)
- de woning is voorzien van dubbel glas (m.u.v. de voordeur), dakisolatie en heeft energielabel C
- achtertuin op het noordwesten

De woning is gemeten op basis van de Branche Brede Meetinstructie (BBMI). Deze meetinstructie is bedoeld om een meer eenduidige manier van meten toe te passen voor het geven van een indicatie van de gebruiksoppervlakte. De Meetinstructie sluit verschillen in meetuitkomsten niet volledig uit, door bijvoorbeeld interpretatieverschillen, afrondingen of beperkingen bij het uitvoeren van de meting.

De Vos Makelaardij B.V. staat niet in voor de juistheid van de plattegronden en aanvaardt hiervoor geen aansprakelijkheid.

Over deze woning

Locatie

Over dit object

Overdracht
Statusverkocht
Prijs€ 335.000 k.k.
Bouw
Bouwjaar1954
Bouwvormbestaande bouw
Type ObjectWoonhuis
HoofdfunctieWoonruimte
Indeling
Woonoppervlakte102 m²
Perceeloppervlakte156 m²
Woning Inhoud398 m³
Kamers5 (4 slaapkamers)
Energie
EnergielabelC

Helaas

Dit object is niet meer beschikbaar

Bekijk ons gehele aanbod of voor meer informatie kunt u contact met ons opnemen.
Bel ons op 058 203 70 72 voor direct contact.

Contact opnemen