Ferdinand Bolstraat 30

Ferdinand Bolstraat 30
LEEUWARDEN

Vraagprijs:
€ 389.000 k.k.

Ferdinand Bolstraat 30, LEEUWARDEN

woningtype
Woonhuis

woonoppervlakte
132 m²

Aantal kamers
5 kamers, 4 slaapkamers

Locatie
LEEUWARDEN

Foto's

Omschrijving

Midden in de populaire woonwijk Huizum, is deze fraaie hoekwoning met aangebouwde garage gelegen. Deze jaren '30 eengezinswoning is in de loop van de jaren gemoderniseerd maar met behoud van karakteristieke elementen. Deze elementen geven de woning de sfeer die je verwacht bij een jaren '30 woning. Glas-in-loodramen, granitovloeren en klassieke erkers zijn aanwezig. Verder beschikt de woning over 4 slaapkamers, moderne keuken- en badkameropstelling, dakisolatie en 6 zonnepanelen (2024).

Huizum
Alle voorzieningen liggen binnen handbereik: van supermarkten en speciaalzaken tot horeca, cultuur en openbaar vervoer. Ook uitvalswegen en het station zijn snel te bereiken. Hier woon je stads, maar toch in een rustige en vriendelijke buurt – een ideale combinatie!

Van harte welkom om deze leuke woning te komen bekijken!

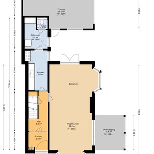
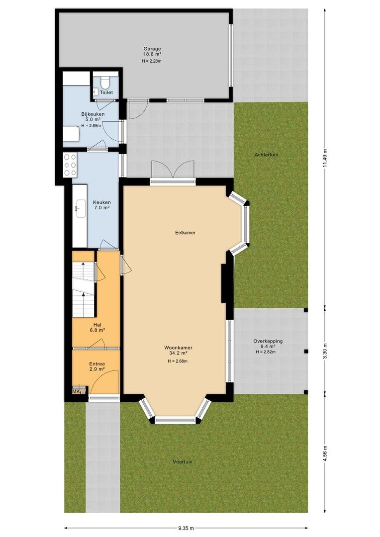
Indeling van de woning:

Begane grond:
- klassieke entree met vestibule (met granitovloer en glas-in-loodramen)
- vernieuwde meterkast
- hal met trapopgang en trapkast
- lichte woonkamer (circa 34 m2) met 2 erkers met glas-in-loodramen en voorzien met massieve houten vloer en openslaande deuren naar de achtertuin
- moderne keukenopstelling met inbouwapparatuur: vaatwasser, oven en afzuigkap, daarnaast een los gasfornuis
- bijkeuken
- toilet met fonteintje
- aangebouwde garage

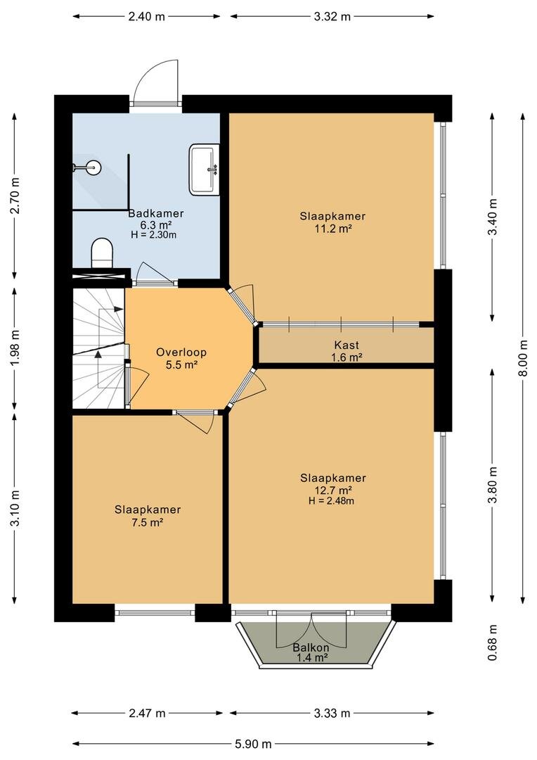
1e verdieping:
- overloop
- 1e en 2e slaapkamer (circa 8 en 13 m2) aan de voorzijde van de woning. Slaapkamer 2 is voorzien van een balkon
- moderne badkamer met inloopdouche, 2e toilet en met wastafel
- 3e slaapkamer (circa 11 m2) met vaste kastenwand

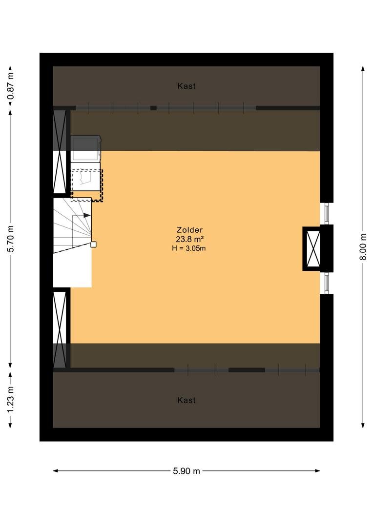
2e verdieping:
- thans een geïsoleerde open ruimte van circa 24 m2, geeft mogelijkheid voor bijvoorbeeld 2 slaapkamers en is voorzien van meerdere raampartijen
- wasmachineaansluiting

Algemeen:
- gebruiksoppervlakte wonen 132 m2, zonder garage en inhoud 559 m3
- perceel 174 m2 eigen grond
- bouwjaar 1930
- energielabel D (oud label, voor de dakisolatie en zonnepanelen)
- centraal verwarmd middels cv-ketel, AWB uit 2009 (eigendom)
- authentieke details van toepassing zoals glas-in-loodramen
- overdracht in overleg

De woning is gemeten op basis van de Branche Brede Meetinstructie (BBMI). Deze meetinstructie is bedoeld om een meer eenduidige manier van meten toe te passen voor het geven van een indicatie van de gebruiksoppervlakte. De Meetinstructie sluit verschillen in meetuitkomsten niet volledig uit, door bijvoorbeeld interpretatieverschillen, afrondingen of beperkingen bij het uitvoeren van de meting. De Vos Makelaardij B.V. staat niet in voor de juistheid van de plattegronden en aanvaardt hiervoor geen aansprakelijkheid.

Over deze woning

Locatie

Over dit object

Overdracht
Statusverkocht onder voorbehoud
Prijs€ 389.000 k.k.
Bouw
Bouwjaar1930
Bouwvormbestaande bouw
Type ObjectWoonhuis
HoofdfunctieWoonruimte
Indeling
Woonoppervlakte132 m²
Perceeloppervlakte174 m²
Woning Inhoud559 m³
Kamers5 (4 slaapkamers)
Energie
EnergielabelD

Helaas

Dit object is niet meer beschikbaar

Bekijk ons gehele aanbod of voor meer informatie kunt u contact met ons opnemen.
Bel ons op 058 203 70 72 voor direct contact.

Contact opnemen