Brederostraat 17

Brederostraat 17
LEEUWARDEN

Vraagprijs:
€ 210.000 k.k.

Brederostraat 17, LEEUWARDEN

woningtype
Appartement

woonoppervlakte
82 m²

Aantal kamers
3 kamers, 2 slaapkamers

Locatie
LEEUWARDEN

Foto's

Omschrijving

Verrassend ruime jaren '30 bovenwoning (82 m2) in de populaire Vosseparkwijk! Deze leuke bovenwoning beschikt over woonruimte op meerdere verdiepingen, 2 royale slaapkamers, 2 badkamers en een fijne zolderverdieping om eventueel als werkplek in te richten.

De Vosseparkwijk in Leeuwarden is een sfeervolle en karakteristieke wijk, gelegen ten westen van het stadscentrum. De wijk staat bekend om haar mix van historische en moderne architectuur, evenals het groene Vossepark dat een geliefde plek is voor ontspanning en recreatie. De Vosseparkwijk biedt een rustige woonomgeving met diverse voorzieningen in de buurt zoals scholen, winkels en sportfaciliteiten, waardoor het een aantrekkelijke locatie is voor zowel jonge gezinnen als starters.

Van harte welkom om deze leuke bovenwoning te komen bekijken!

Indeling van de bovenwoning:

Begane grond:
- entree en trapopgang
- meterkast

1e verdieping:
- overloop
- toilet meet fonteintje
- woonkamer met fraaie raampartij aan de voorzijde en vaste kast
- lichte keuken met inbouwapparatuur: 4-pits gasfornuis en afzuigkap
- badkamer met douche en wastafel
- balkon

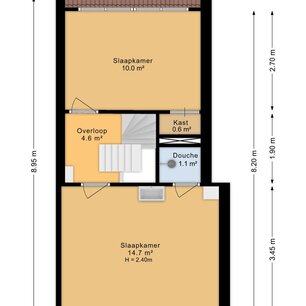
2e verdieping:
- overloop
- ruime 1e slaapkamer (circa 15 m2) aan de voorzijde met wastafel en eigen douche
- 2e slaapkamer (circa 10 m2) met vaste kast aan de achterzijde

Zolderverdieping:
- open ruimte met cv-opstelling en wasmachineaansluiting

Algemeen:
- gebruiksoppervlakte wonen 82 m2 en inhoud 293 m3
- aantrekkelijk appartement voor starters op de woningmarkt
- winkelcentrum van Leeuwarden op loopafstand
- 3 verdiepingen
- gedeeltelijk voorzien van dubbele beglazing
- VvE bijdrage van 30 euro per maand
- slapende VvE
- houten berging
- parkeervergunning blauwe zone
- aanvaarding in overleg



De woning is gemeten op basis van de Branche Brede Meetinstructie (BBMI). Deze meetinstructie is bedoeld om een meer eenduidige manier van meten toe te passen voor het geven van een indicatie van de gebruiksoppervlakte. De Meetinstructie sluit verschillen in meetuitkomsten niet volledig uit, door bijvoorbeeld interpretatieverschillen, afrondingen of beperkingen bij het uitvoeren van de meting.

De Vos Makelaardij B.V. staat niet in voor de juistheid van de plattegronden en aanvaardt hiervoor geen aansprakelijkheid.

Over deze woning

Locatie

Over dit object

Overdracht
Statusverkocht
Prijs€ 210.000 k.k.
Bouw
Bouwjaar1939
Bouwvormbestaande bouw
Type ObjectAppartement
HoofdfunctieWoonruimte
Indeling
Woonoppervlakte82 m²
Woning Inhoud293 m³
Kamers3 (2 slaapkamers)
Energie
EnergielabelD

Helaas

Dit object is niet meer beschikbaar

Bekijk ons gehele aanbod of voor meer informatie kunt u contact met ons opnemen.
Bel ons op 058 203 70 72 voor direct contact.

Contact opnemen